$42,215/month
2789 S Financial Ct #1C Sanford, FL 32773
For Rent MLS# O6357506
720 sq ft Commercial
Details for 2789 S Financial Ct #1C
MLS# O6357506
Description for 2789 S Financial Ct #1C, Sanford, FL, 32773
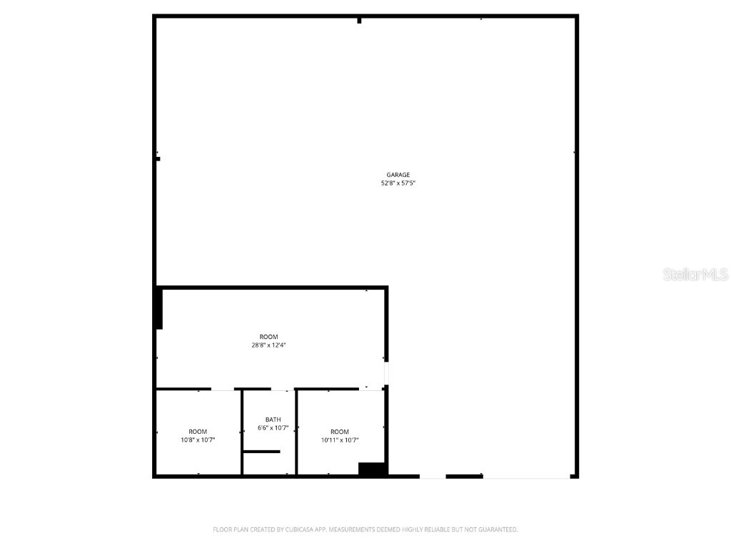
Well-maintained warehouse for lease in Sanford off Ronald Reagan Blvd near 17-92, SR-417, and Sanford Airport. Approx. 2,400 sq. ft. of usable warehouse space with 13–16 ft ceilings, one 10x10 grade-level bay door, and 4–5 parking spaces. Includes two finished 10x11 offices with A/C, a 29x12 common area, and a 10x6 bathroom with tiled shower. Located in a cul-de-sac with fenced area and dumpster space. Ideal for storage, light industrial, or contractor use. Only one other adjoining unit.
Listing Information
Property Type: Commercial, Industrial
Status: Active
Lot Size: 0.88 Acres
Square Feet: 720 sq ft
Year Built: 2002
Construction: Block
Construction Display: New Construction
Subdivision: Midway Commerce Center 1st Add
Foundation: Slab
Number Of Units Total: 2
County: Seminole
Construction Status: New Construction
Interior Features
Flooring: Carpet,Concrete
Utilities
Sewer: Septic Tank
Other Utilities: Electricity Available,High Speed Internet Available,Water Connected
Cooling: Central Air
Heating: Electric
Exterior / Lot Features
Parking Description: Parking Space(s)
Roof: Other
Additional Exterior/Lot Features: Fence
Driving Directions
Ronald Reagan Blvd to Stonewall Pl, turn on Stonewall, Turn right onto Benchmark Ln, Turn right onto S Financial Ct go to end of cu-de-sac straigh in towards fenced area. Unit is towards the back within fenced area.
Financial Considerations
Tenant Pays: Electricity,Insurance,Trash Collection,Water
Owner Pays: Taxes,Water
Tax/Property ID: 22-20-30-510-0000-0250
Tax Amount: 11721
Tax Year: 2024
A broker reciprocity listing courtesy: LEGACY REALTY & BROKERS LLC
Based on information provided by Stellar MLS as distributed by the MLS GRID. Information from the Internet Data Exchange is provided exclusively for consumers’ personal, non-commercial use, and such information may not be used for any purpose other than to identify prospective properties consumers may be interested in purchasing. This data is deemed reliable but is not guaranteed to be accurate by Edina Realty, Inc., or by the MLS. Edina Realty, Inc., is not a multiple listing service (MLS), nor does it offer MLS access.
Copyright 2026 Stellar MLS as distributed by the MLS GRID. All Rights Reserved.
Sales History & Tax Summary for 2789 S Financial Ct #1C
Sales History
| Date | Price | |
|---|---|---|
| Currently not available. | ||
Tax Summary
| Tax Year | Estimated Market Value | Total Tax |
|---|---|---|
| Currently not available. | ||
Data powered by ATTOM Data Solutions. Copyright© 2026. Information deemed reliable but not guaranteed.
Schools
Schools nearby 2789 S Financial Ct #1C
| Schools in attendance boundaries | Grades | Distance | Rating |
|---|---|---|---|
| Loading... | |||
| Schools nearby | Grades | Distance | Rating |
|---|---|---|---|
| Loading... | |||
Data powered by ATTOM Data Solutions. Copyright© 2026. Information deemed reliable but not guaranteed.
The schools shown represent both the assigned schools and schools by distance based on local school and district attendance boundaries. Attendance boundaries change based on various factors and proximity does not guarantee enrollment eligibility. Please consult your real estate agent and/or the school district to confirm the schools this property is zoned to attend. Information is deemed reliable but not guaranteed.
SchoolDigger ® Rating
The SchoolDigger rating system is a 1-5 scale with 5 as the highest rating. SchoolDigger ranks schools based on test scores supplied by each state's Department of Education. They calculate an average standard score by normalizing and averaging each school's test scores across all tests and grades.
Coming soon properties will soon be on the market, but are not yet available for showings.