$1,395/month
284 115th Avenue N #3 Saint Petersburg, FL 33716
For Rent MLS# TB8494602
1 beds 1 baths 680 sq ft Condo
Details for 284 115th Avenue N #3
MLS# TB8494602
Description for 284 115th Avenue N #3, Saint Petersburg, FL, 33716
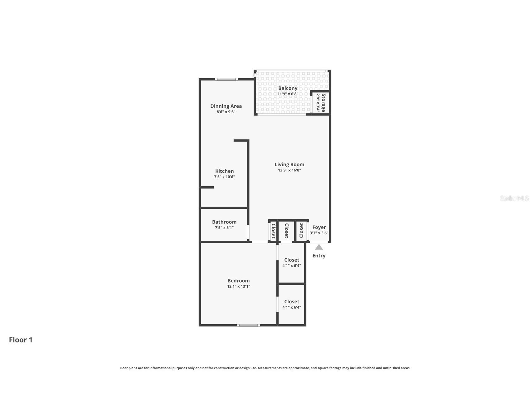
Move-In Special – Limited Time Only! 1 Bedroom St. Pete Condo Almost Everything Included! Move-In Special – Limited Time Only! Enjoy ½ month FREE rent, prorated over a 12-month lease, lowering your effective monthly cost while keeping the advertised rate the same! PLUS, take advantage of a limited-time application fee waiver (Rent Solutions application fees only). This is a great opportunity to secure added value and savings upfront. Valid through May 31st—don’t miss out! Welcome to Windward Pointe in St. Petersburg. Unit 3 is a second-floor condo ideally located across from the community pool, tennis courts, clubhouse, and car wash station, and just steps from its covered parking space and mailbox. Inside, you’ll find a spacious living room that opens to an enclosed balcony overlooking a peaceful green space, complete with an additional storage closet. The galley-style kitchen features stainless steel appliances, an eat-in area, and a pass-through to the living room, with extra space for a butcher block or pantry. All windows are fitted with shutter blinds. The generously sized bedroom offers nearly 150 square feet and includes two walk-in closets. Rent includes water, sewer, trash, and lawn care. This well-maintained community is conveniently located near downtown St. Petersburg, Gandy Boulevard, and I-275. Schedule your showing today! If you decide to apply for one of our properties: Screening includes credit/background check, income verification of 2.5 to 3 times the monthly rent and rental history verification. We encourage applicants with credit scores above 600 to apply, as meeting this criteria will help streamline the application process. APPLICANT CHARGES: Application Fees: $75 for each adult, 18 years of age and older (non-refundable). Lease Initiation Admin Fee: $150.00 after approval and upon signing. Security Deposit: Equal to one month’s rent. $25 for each pet application fee for pet verification (non-refundable). Current vaccination records will be required. ESA and service animals are FREE with verified documentation. Pet Fee if applicable (non-refundable) $350 for each approved pet. All Rent Solutions residents are enrolled in the Resident Benefits Package (RBP) for $49.95/month which includes liability insurance, credit building to help boost the resident’s credit score with timely rent payments, HVAC air filter delivery (for applicable properties), our best-in-class resident rewards program, and much more! More details upon application.
Listing Information
Property Type: Rental, Condominium
Status: Active
Bedrooms: 1
Bathrooms: 1
Lot Size: 22 Acres
Square Feet: 680 sq ft
Year Built: 1974
Stories: 1 Story
Date Available: 4/1/2026
Subdivision: Windward Pointe St Petersburg
County: Pinellas
School Information
Elementary: Sawgrass Lake Elementary-Pn
Middle: Fitzgerald Middle-Pn
High: Pinellas Park High-Pn
Room Information
Bathrooms
Full Baths: 1
Interior Features
Appliances: Range, Refrigerator, Microwave
Doors/Windows: Window Treatments
Additional Interior Features: Walk-In Closet(s), Window Treatments, Ceiling Fan(s), Other
Utilities
Cooling: Ceiling Fan(s), Central Air
Heating: Central, Electric
Exterior / Lot Features
Parking Description: Assigned
Pool: Association, Community
Additional Exterior/Lot Features: Balcony, Balcony
Community Features
Community Features: Pool, Tennis Court(s), Playground, Clubhouse
Association Amenities: Clubhouse, Pool, Playground, Tennis Court(s)
Security Deposit: 1395
Driving Directions
From 4th St N, turn RIGHT onto 115th Ave N, take 3rd entrance on the right, #3 is located in building 284 on far right side.
Financial Considerations
Owner Pays: Grounds Care,Other,Pool Maintenance,Sewer,Trash Collection,Water
Tax/Property ID: 18-30-17-98325-006-2843
A broker reciprocity listing courtesy: RENT SOLUTIONS
Based on information provided by Stellar MLS as distributed by the MLS GRID. Information from the Internet Data Exchange is provided exclusively for consumers’ personal, non-commercial use, and such information may not be used for any purpose other than to identify prospective properties consumers may be interested in purchasing. This data is deemed reliable but is not guaranteed to be accurate by Edina Realty, Inc., or by the MLS. Edina Realty, Inc., is not a multiple listing service (MLS), nor does it offer MLS access.
Copyright 2026 Stellar MLS as distributed by the MLS GRID. All Rights Reserved.
Sales History & Tax Summary for 284 115th Avenue N #3
Sales History
| Date | Price | |
|---|---|---|
| Currently not available. | ||
Tax Summary
| Tax Year | Estimated Market Value | Total Tax |
|---|---|---|
| Currently not available. | ||
Data powered by ATTOM Data Solutions. Copyright© 2026. Information deemed reliable but not guaranteed.
Schools
Schools nearby 284 115th Avenue N #3
| Schools in attendance boundaries | Grades | Distance | Rating |
|---|---|---|---|
| Loading... | |||
| Schools nearby | Grades | Distance | Rating |
|---|---|---|---|
| Loading... | |||
Data powered by ATTOM Data Solutions. Copyright© 2026. Information deemed reliable but not guaranteed.
The schools shown represent both the assigned schools and schools by distance based on local school and district attendance boundaries. Attendance boundaries change based on various factors and proximity does not guarantee enrollment eligibility. Please consult your real estate agent and/or the school district to confirm the schools this property is zoned to attend. Information is deemed reliable but not guaranteed.
SchoolDigger ® Rating
The SchoolDigger rating system is a 1-5 scale with 5 as the highest rating. SchoolDigger ranks schools based on test scores supplied by each state's Department of Education. They calculate an average standard score by normalizing and averaging each school's test scores across all tests and grades.
Coming soon properties will soon be on the market, but are not yet available for showings.