$1,900/month
2906 Lichen Lane #B Clearwater, FL 33760
For Rent MLS# TB8448815
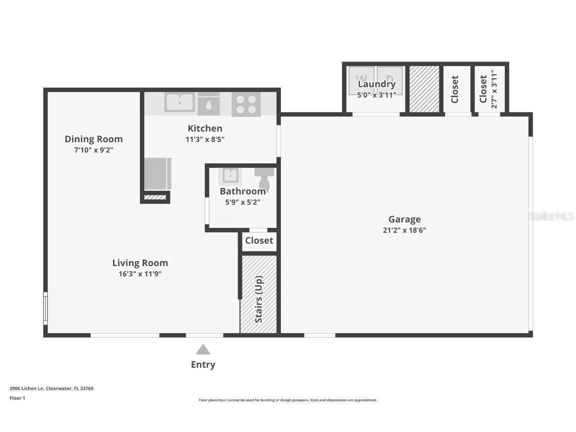
2 beds 2 baths 853 sq ft Townhouse/Twinhome
Details for 2906 Lichen Lane #B
MLS# TB8448815
Description for 2906 Lichen Lane #B, Clearwater, FL, 33760
Stunning Fully Remodeled Townhouse in Eastwood Shores! This beautifully renovated 2BR/2BA home combines modern style, low-maintenance living, and an unbeatable Clearwater location just minutes from Tampa Bay and award-winning beaches. From the moment you enter, you’ll be impressed by the open-concept layout with soaring vaulted ceilings, abundant natural light, and fresh neutral paint that makes the home feel bright and inviting. The main living area has been upgraded with luxury vinyl plank flooring for both elegance and durability, while modern trim and finishes give the home a fresh, cohesive look. The gourmet kitchen is a true highlight, featuring brand-new stainless-steel appliances, quartz countertops, sleek cabinetry with soft-close doors, and under-cabinet lighting that adds both function and style. Sliding glass doors lead directly from the kitchen to your private patio, creating the perfect flow for morning coffee, outdoor dining, or entertaining with friends. Upstairs, you’ll find two spacious bedrooms with plush carpet, ample closet space, and an updated full bathroom designed with contemporary fixtures, designer tile, and a modern vanity. Additional upgrades include a 1-car garage with brand-new epoxy flooring, a convenient laundry area, and impact-resistant windows and sliding doors throughout the home for energy efficiency and peace of mind. The roof is maintained by the HOA and the A/C is less than 5 years old, offering long-term savings and confidence in your investment. Living in Eastwood Shores means enjoying a carefree lifestyle with HOA services that cover water, sewer, trash, exterior insurance, and landscaping. Residents also have access to outstanding amenities, including a sparkling community pool, tennis courts, fishing dock, and scenic walking trails. The community is pet-friendly and beautifully maintained, providing a welcoming environment for all. This townhouse is ideally located near major highways for an easy commute, as well as shopping, dining, entertainment, and healthcare facilities. Whether you’re a first-time buyer, seasonal resident, or investor looking for a strong rental opportunity, this property offers the perfect combination of comfort, convenience, and modern design. This property’s location combines the best of waterfront living, community amenities, and convenient access to urban essentials. Its proximity to shopping, dining, entertainment, and major transportation routes makes it ideal for a vibrant, active lifestyle. The area’s natural beauty, safety, and growth prospects further enhance its appeal, making it an excellent choice for families, professionals, and retirees seeking a peaceful yet connected community.
Listing Information
Property Type: Rental, Townhouse
Status: Active
Bedrooms: 2
Bathrooms: 2
Lot Size: 0.02 Acres
Square Feet: 853 sq ft
Year Built: 1979
Garage: Yes
Stories: 2 Story
Date Available: 11/26/2025
Subdivision: Eastwood Shores 2 Ph 2
County: Pinellas
School Information
Elementary: Belcher Elementary-Pn
Middle: Oak Grove Middle-Pn
High: Pinellas Park High-Pn
Room Information
Main Floor
Bathroom 1:
Living Room:
Kitchen:
Upper Floor
Bathroom 2:
Bedroom 2:
Primary Bedroom:
Bathrooms
Full Baths: 2
Additonal Room Information
Laundry: In Garage
Interior Features
Appliances: Refrigerator
Additional Interior Features: Ceiling Fan(s), Living/Dining Room, Walk-In Closet(s)
Utilities
Water: Public
Sewer: Public Sewer
Other Utilities: Electricity Available,Municipal Utilities,Sewer Connected,Water Available
Cooling: Ceiling Fan(s), Central Air
Heating: Central
Exterior / Lot Features
Attached Garage: Attached Garage
Garage Spaces: 1
Pool: Community
Community Features
Community Features: Sidewalks, Pool, Playground, Clubhouse, Park, Racquetball
Driving Directions
ead north on U.S. 19 Frontage Rd, Turn right onto Haines Bayshore Rd, Turn right onto Wolford Rd, Turn left onto Pine Cone Cir, Turn right onto Lichen Ln, property will be on the right.
Financial Considerations
Owner Pays: Grounds Care,Management,Pool Maintenance,Recreational,Taxes
Tax/Property ID: 29-29-16-24203-906-0020
A broker reciprocity listing courtesy: TOP FLORIDA HOMES
Based on information provided by Stellar MLS as distributed by the MLS GRID. Information from the Internet Data Exchange is provided exclusively for consumers’ personal, non-commercial use, and such information may not be used for any purpose other than to identify prospective properties consumers may be interested in purchasing. This data is deemed reliable but is not guaranteed to be accurate by Edina Realty, Inc., or by the MLS. Edina Realty, Inc., is not a multiple listing service (MLS), nor does it offer MLS access.
Copyright 2025 Stellar MLS as distributed by the MLS GRID. All Rights Reserved.
Sales History & Tax Summary for 2906 Lichen Lane #B
Sales History
| Date | Price | Change |
|---|---|---|
| Currently not available. | ||
Tax Summary
| Tax Year | Estimated Market Value | Total Tax |
|---|---|---|
| Currently not available. | ||
Data powered by ATTOM Data Solutions. Copyright© 2025. Information deemed reliable but not guaranteed.
Schools
Schools nearby 2906 Lichen Lane #B
| Schools in attendance boundaries | Grades | Distance | Rating |
|---|---|---|---|
| Loading... | |||
| Schools nearby | Grades | Distance | Rating |
|---|---|---|---|
| Loading... | |||
Data powered by ATTOM Data Solutions. Copyright© 2025. Information deemed reliable but not guaranteed.
The schools shown represent both the assigned schools and schools by distance based on local school and district attendance boundaries. Attendance boundaries change based on various factors and proximity does not guarantee enrollment eligibility. Please consult your real estate agent and/or the school district to confirm the schools this property is zoned to attend. Information is deemed reliable but not guaranteed.
SchoolDigger ® Rating
The SchoolDigger rating system is a 1-5 scale with 5 as the highest rating. SchoolDigger ranks schools based on test scores supplied by each state's Department of Education. They calculate an average standard score by normalizing and averaging each school's test scores across all tests and grades.
Coming soon properties will soon be on the market, but are not yet available for showings.