$3,530/month
2927 W Gandy Boulevard Tampa, FL 33611 - HAWTHORNE POND
For Rent MLS# TB8424876
3 beds 3 baths 1,833 sq ft Townhouse/Twinhome
Details for 2927 W Gandy Boulevard
MLS# TB8424876
Description for 2927 W Gandy Boulevard, Tampa, FL, 33611 - HAWTHORNE POND
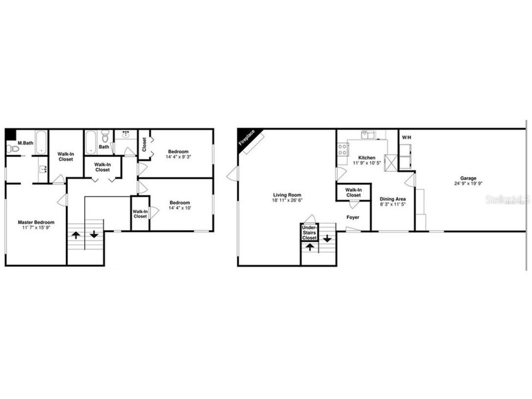
One or more photo(s) has been virtually staged. Available for annual lease Jan 2026. Gorgeous 2 story Town-home,1833sf, 3br, 2 1/2 bath & oversized 2 car garage. Beautiful wood flooring throughout, (no carpet). Streaming natural light with large picture windows adorned with plantation shutters. Cozy up to the wood burning fireplace. Most of all, enjoy relaxing on the large brick patio overlooking the crystal clear waters of the spring fed pond and seeing wildlife; fish, turtles, and birds. There is a boardwalk which meanders along the entire pond & property, including bridges that take you to the small Banyan Tree Island. Hawthorn Pond, is a small enclave of 10 town-homes located on a natural spring-fed pond close to Bayshore Blvd just East of MacDill on Gandy with sidewalks leading from Gandy Blvd to Bayshore Blvd. This property is high and Dry and did not flood. Features include newer wood floors throughout upstairs bedrooms and downstairs living areas, wood burning stone fireplace, new impact windows, new custom plantation shutters, and fresh paint throughout. The kitchen has brand-new stainless-steel appliances kitchen back splash, and a separate kitchen dining area. Upstairs, the master suite offers serene views on the pond side, w/new custom cabinets in the master bath & quartz vanity, separated from the additional 2 bedrooms & hall bath. Storage is abundant, storage under the stairs, walk-in closets, linen closet, and custom cabinets in the garage with work counter. Floor plans attached- All measurements to be verified. Tenant responsible for renters insurance, electric, & internet and applications for Hawthorn Pond association $50 each adult, with 7 day turn around, and credit check with Rent Spree $39.99 each adult. Minimum 670 credit score, no subleasing. Possible to renew annual lease 1-3 years.
Listing Information
Property Type: Rental, Townhouse
Status: Active
Bedrooms: 3
Bathrooms: 3
Lot Size: 0.03 Acres
Square Feet: 1,833 sq ft
Year Built: 1981
Garage: Yes
Stories: 2 Story
Date Available: 1/17/2026
Subdivision: Hawthorne Pond A Condo
County: Hillsborough
School Information
Elementary: Ballast Point-Hb
Middle: Madison-Hb
High: Robinson-Hb
Room Information
Main Floor
Laundry: 3.5x7.7
Kitchen: 12x9
Dining Room: 12x13
Living Room: 18.5x14
Foyer: 7x6
Porch: 12x27
Bathroom 3: 5x6
Dinette: 15.5x12
Upper Floor
Bathroom 2: 5.5x7
Bedroom 3: 14x10
Bedroom 2: 14x10
Primary Bathroom: 10x8
Primary Bedroom: 15.5x12
Bathrooms
Full Baths: 2
1/2 Baths: 1
Additonal Room Information
Laundry: In Garage
Interior Features
Appliances: Washer, Microwave, Range, Refrigerator, Dishwasher, Disposal, Dryer, Electric Water Heater
Flooring: Carpet,Engineered Hardwood,Tile
Doors/Windows: Window Treatments, Storm Window(s), Shutters, Wood Frames
Fireplaces: Wood Burning, Living Room
Additional Interior Features: Walk-In Closet(s), Split Bedrooms, Window Treatments, Ceiling Fan(s), Eat-In Kitchen, Upper Level Primary, Open Floorplan, Living/Dining Room
Utilities
Water: Public
Sewer: Public Sewer
Other Utilities: Cable Connected,Electricity Connected,Municipal Utilities,Sewer Connected,Water Connected
Cooling: Ceiling Fan(s), Central Air
Heating: Central, Heat Pump, Electric
Exterior / Lot Features
Attached Garage: Attached Garage
Garage Spaces: 2
Parking Description: Workshop in Garage, Garage Door Opener, Guest, Off Street, Garage
Lot View: Pond,Trees/Woods,Water
Additional Exterior/Lot Features: Sprinkler/Irrigation, Rain Gutters, Lighting, Patio, Landscaped, City Lot, Buyer Approval Required
Waterfront Details
Standard Water Body: HAWTHORNE POND
Water Front Features: Pond
Community Features
Community Features: Street Lights, Sidewalks
Security Features: Security System, Secured Garage/Parking, Security System Owned, Smoke Detector(s)
Association Amenities: Maintenance Grounds
Security Deposit: 3550
Driving Directions
From Bayshore Blvd head West on Gandy Blvd to Hawthorne Pond entrance on the North Side. Hawthorn Pond Townhomes are located just East of Woodys Car wash and on opposite side of street from Cooks Deli.
Financial Considerations
Owner Pays: Grounds Care,Management
Tax/Property ID: A-03-30-18-3WG-000000-02927.0
A broker reciprocity listing courtesy: KELLER WILLIAMS SOUTH TAMPA
Based on information provided by Stellar MLS as distributed by the MLS GRID. Information from the Internet Data Exchange is provided exclusively for consumers’ personal, non-commercial use, and such information may not be used for any purpose other than to identify prospective properties consumers may be interested in purchasing. This data is deemed reliable but is not guaranteed to be accurate by Edina Realty, Inc., or by the MLS. Edina Realty, Inc., is not a multiple listing service (MLS), nor does it offer MLS access.
Copyright 2026 Stellar MLS as distributed by the MLS GRID. All Rights Reserved.
Sales History & Tax Summary for 2927 W Gandy Boulevard
Sales History
| Date | Price | Change |
|---|---|---|
| Currently not available. | ||
Tax Summary
| Tax Year | Estimated Market Value | Total Tax |
|---|---|---|
| Currently not available. | ||
Data powered by ATTOM Data Solutions. Copyright© 2026. Information deemed reliable but not guaranteed.
Schools
Schools nearby 2927 W Gandy Boulevard
| Schools in attendance boundaries | Grades | Distance | Rating |
|---|---|---|---|
| Loading... | |||
| Schools nearby | Grades | Distance | Rating |
|---|---|---|---|
| Loading... | |||
Data powered by ATTOM Data Solutions. Copyright© 2026. Information deemed reliable but not guaranteed.
The schools shown represent both the assigned schools and schools by distance based on local school and district attendance boundaries. Attendance boundaries change based on various factors and proximity does not guarantee enrollment eligibility. Please consult your real estate agent and/or the school district to confirm the schools this property is zoned to attend. Information is deemed reliable but not guaranteed.
SchoolDigger ® Rating
The SchoolDigger rating system is a 1-5 scale with 5 as the highest rating. SchoolDigger ranks schools based on test scores supplied by each state's Department of Education. They calculate an average standard score by normalizing and averaging each school's test scores across all tests and grades.
Coming soon properties will soon be on the market, but are not yet available for showings.