$14,400/month
295 Patterson Road #1A Haines City, FL 33844
For Rent MLS# O6335247
8,256 sq ft Commercial
Details for 295 Patterson Road #1A
MLS# O6335247
Description for 295 Patterson Road #1A, Haines City, FL, 33844
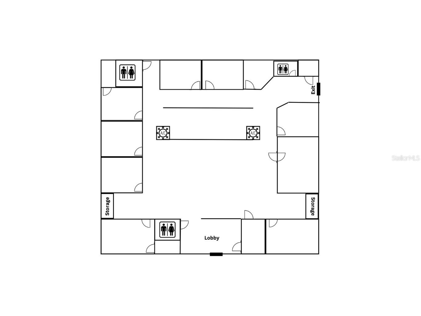
Office Suites for Rent – 9 Private Offices – Approx. 144 sq. ft. Each – Starting at $1,200/month Located off US-27 in Davenport, this professional office building offers nine private suites (approx. 144 sq. ft. each), ideal for growing businesses or individual professionals. The property features a highly visible, easily accessible location with ample parking. Suites include soundproofed walls, doors, and ceilings for privacy, and some offices have sinks for consultations or specialized work. Tenants share a spacious reception area, conference room, receptionist office, administrative office, staff break room, and three restrooms in the common corridor. Each suite has its dedicated A/C vent. Rent starts at $1,200/month and includes water and electricity — an excellent value for quality, move-in ready office space. Call today to schedule a showing.
Listing Information
Property Type: Commercial, Office
Status: Active
Lot Size: 1.05 Acres
Square Feet: 8,256 sq ft
Year Built: 2006
Stories: 1 Story
Construction: Block
Subdivision: Fla Dev Co Sub
Foundation: Slab
County: Polk
Utilities
Cooling: Central Air
Driving Directions
From Clermont, South on US HWY 27, turn left on Patterson Rd. 300 ft. turn left
Financial Considerations
Tenant Pays: Other,See Remarks
Owner Pays: Electricity,Insurance,Sewer,Water
Tax/Property ID: 27-27-08-727500-040292
Tax Amount: 33519.74
Tax Year: 2024
A broker reciprocity listing courtesy: EMPIRE NETWORK REALTY
Based on information provided by Stellar MLS as distributed by the MLS GRID. Information from the Internet Data Exchange is provided exclusively for consumers’ personal, non-commercial use, and such information may not be used for any purpose other than to identify prospective properties consumers may be interested in purchasing. This data is deemed reliable but is not guaranteed to be accurate by Edina Realty, Inc., or by the MLS. Edina Realty, Inc., is not a multiple listing service (MLS), nor does it offer MLS access.
Copyright 2026 Stellar MLS as distributed by the MLS GRID. All Rights Reserved.
Sales History & Tax Summary for 295 Patterson Road #1A
Sales History
| Date | Price | |
|---|---|---|
| Currently not available. | ||
Tax Summary
| Tax Year | Estimated Market Value | Total Tax |
|---|---|---|
| Currently not available. | ||
Data powered by ATTOM Data Solutions. Copyright© 2026. Information deemed reliable but not guaranteed.
Schools
Schools nearby 295 Patterson Road #1A
| Schools in attendance boundaries | Grades | Distance | Rating |
|---|---|---|---|
| Loading... | |||
| Schools nearby | Grades | Distance | Rating |
|---|---|---|---|
| Loading... | |||
Data powered by ATTOM Data Solutions. Copyright© 2026. Information deemed reliable but not guaranteed.
The schools shown represent both the assigned schools and schools by distance based on local school and district attendance boundaries. Attendance boundaries change based on various factors and proximity does not guarantee enrollment eligibility. Please consult your real estate agent and/or the school district to confirm the schools this property is zoned to attend. Information is deemed reliable but not guaranteed.
SchoolDigger ® Rating
The SchoolDigger rating system is a 1-5 scale with 5 as the highest rating. SchoolDigger ranks schools based on test scores supplied by each state's Department of Education. They calculate an average standard score by normalizing and averaging each school's test scores across all tests and grades.
Coming soon properties will soon be on the market, but are not yet available for showings.