$3,000/month
3002 Pointeview Drive Tampa, FL 33611
For Rent MLS# TB8438078
3 beds 3 baths 1,904 sq ft Townhouse/Twinhome
Details for 3002 Pointeview Drive
MLS# TB8438078
Description for 3002 Pointeview Drive, Tampa, FL, 33611
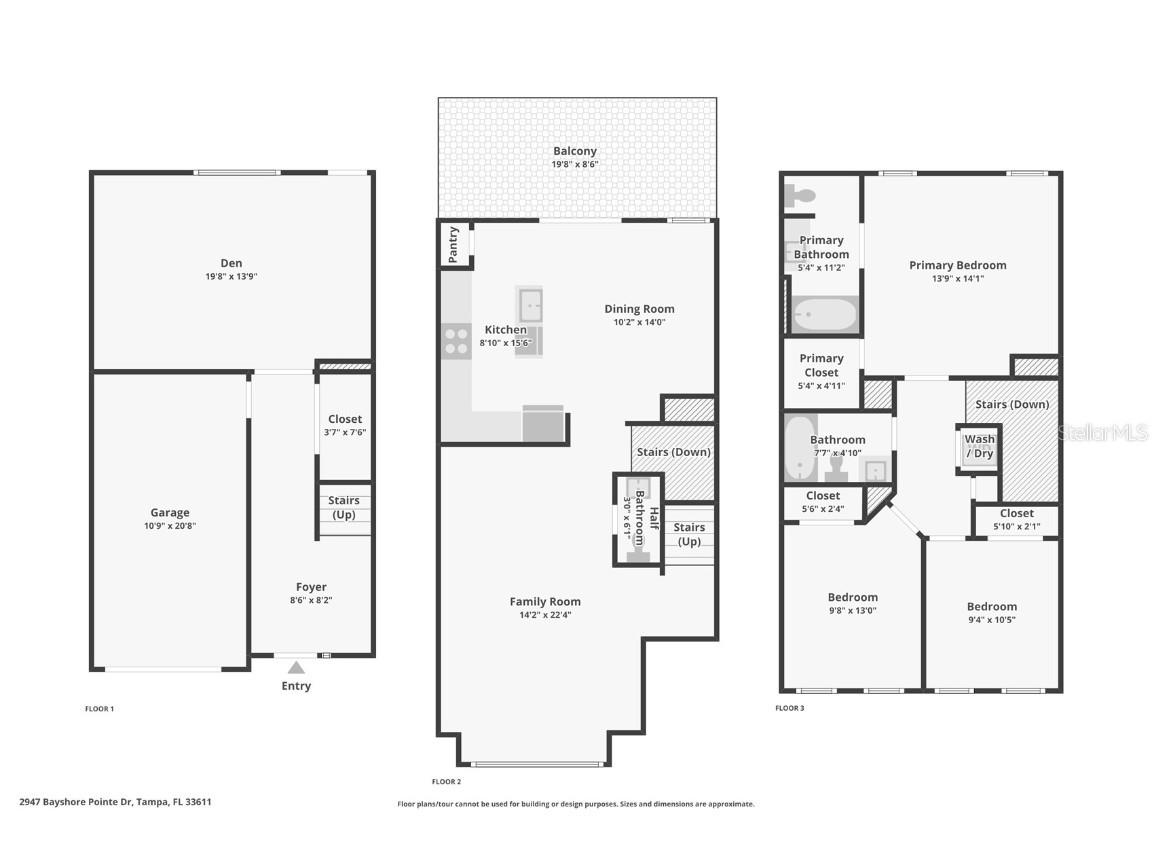
Townhouse at beautiful, gated community of Bayshore Pointe. Less than a mile from MacDill AFB at the desirable Bayshore Boulevard. Few minutes to Downtown, Crosstown and Gandy bridge. Shops, Groceries and Restaurants nearby. Spacious 1,926 square foot. 3 Bedrooms and 2 1/2 Bathrooms. End unit with lots of day light. Large Living room and Dining area. Breakfast area and eat-in kitchen. Stainless steel kitchen appliances with gas cooking. Spacious Bonus room with Bathroom. French doors out of living room leading to roomy balcony. Ceiling fans in all rooms. Nice white wood blinds throughout house. All rooms are painted, carpet and tile flooring. Ample Master Bedroom with spacious walk-in closet. Master Bathroom has double sink, garden tub and stand shower. Laundry room with washer and gas dryer. Shaded patio with grass. Landscaping done by HOA. 1 car garage + 1 driveway. Guest parking across. Community features are heated swimming pool, hot tub, tennis, pickleball, basketball and volleyball courts. Private Pier overlooking Tampa Bay on Bayshore Boulevard. Gated community with ponds and 2 entrances to property. Gorgeous MacDill 48 Park, Skyview Park and Gadsden Park just a short walk.
Listing Information
Property Type: Rental, Townhouse
Status: Active
Bedrooms: 3
Bathrooms: 3
Lot Size: 0.03 Acres
Square Feet: 1,904 sq ft
Year Built: 2002
Garage: Yes
Stories: 3 Story
Date Available: 11/1/2025
Subdivision: Bayshore Pointe Twnhms Phas
County: Hillsborough
Room Information
Main Floor
Bonus Room: 15x12
Upper Floor
Kitchen: 14x12
Bathroom 3: 10x10
Bathroom 2: 10x10
Bedroom 1: 16x14
Bathrooms
Full Baths: 2
1/2 Baths: 1
Additonal Room Information
Laundry: Inside
Interior Features
Appliances: Washer, Gas Water Heater, Cooktop, Dishwasher, Disposal, Dryer, Microwave, Refrigerator
Doors/Windows: Window Treatments
Additional Interior Features: Walk-In Closet(s), Window Treatments, Ceiling Fan(s), Cathedral Ceiling(s), High Ceilings, Living/Dining Room, Solid Surface Counters
Utilities
Cooling: Ceiling Fan(s), Central Air
Heating: Central, Gas
Exterior / Lot Features
Attached Garage: Attached Garage
Garage Spaces: 1
Pool: Community
Community Features
Community Features: Pool, Tennis Court(s), Sidewalks, Gated, Golf Carts OK
Security Features: Gated Community
Driving Directions
S ON BAYSHORE. RIGHT ON SHOREBREEZE. HOME ON LEFT
Financial Considerations
Owner Pays: Grounds Care,Pool Maintenance,Recreational,Repairs
Tax/Property ID: A-15-30-18-5M5-K00000-00001.0
A broker reciprocity listing courtesy: EXIT BAYSHORE REALTY
Based on information provided by Stellar MLS as distributed by the MLS GRID. Information from the Internet Data Exchange is provided exclusively for consumers’ personal, non-commercial use, and such information may not be used for any purpose other than to identify prospective properties consumers may be interested in purchasing. This data is deemed reliable but is not guaranteed to be accurate by Edina Realty, Inc., or by the MLS. Edina Realty, Inc., is not a multiple listing service (MLS), nor does it offer MLS access.
Copyright 2025 Stellar MLS as distributed by the MLS GRID. All Rights Reserved.
Sales History & Tax Summary for 3002 Pointeview Drive
Sales History
| Date | Price | Change |
|---|---|---|
| Currently not available. | ||
Tax Summary
| Tax Year | Estimated Market Value | Total Tax |
|---|---|---|
| Currently not available. | ||
Data powered by ATTOM Data Solutions. Copyright© 2025. Information deemed reliable but not guaranteed.
Schools
Schools nearby 3002 Pointeview Drive
| Schools in attendance boundaries | Grades | Distance | Rating |
|---|---|---|---|
| Loading... | |||
| Schools nearby | Grades | Distance | Rating |
|---|---|---|---|
| Loading... | |||
Data powered by ATTOM Data Solutions. Copyright© 2025. Information deemed reliable but not guaranteed.
The schools shown represent both the assigned schools and schools by distance based on local school and district attendance boundaries. Attendance boundaries change based on various factors and proximity does not guarantee enrollment eligibility. Please consult your real estate agent and/or the school district to confirm the schools this property is zoned to attend. Information is deemed reliable but not guaranteed.
SchoolDigger ® Rating
The SchoolDigger rating system is a 1-5 scale with 5 as the highest rating. SchoolDigger ranks schools based on test scores supplied by each state's Department of Education. They calculate an average standard score by normalizing and averaging each school's test scores across all tests and grades.
Coming soon properties will soon be on the market, but are not yet available for showings.