$20,000/month
3221 Tamiami Trl #16 Port Charlotte, FL 33952
For Rent MLS# C7489584
Commercial
Details for 3221 Tamiami Trl #16
MLS# C7489584
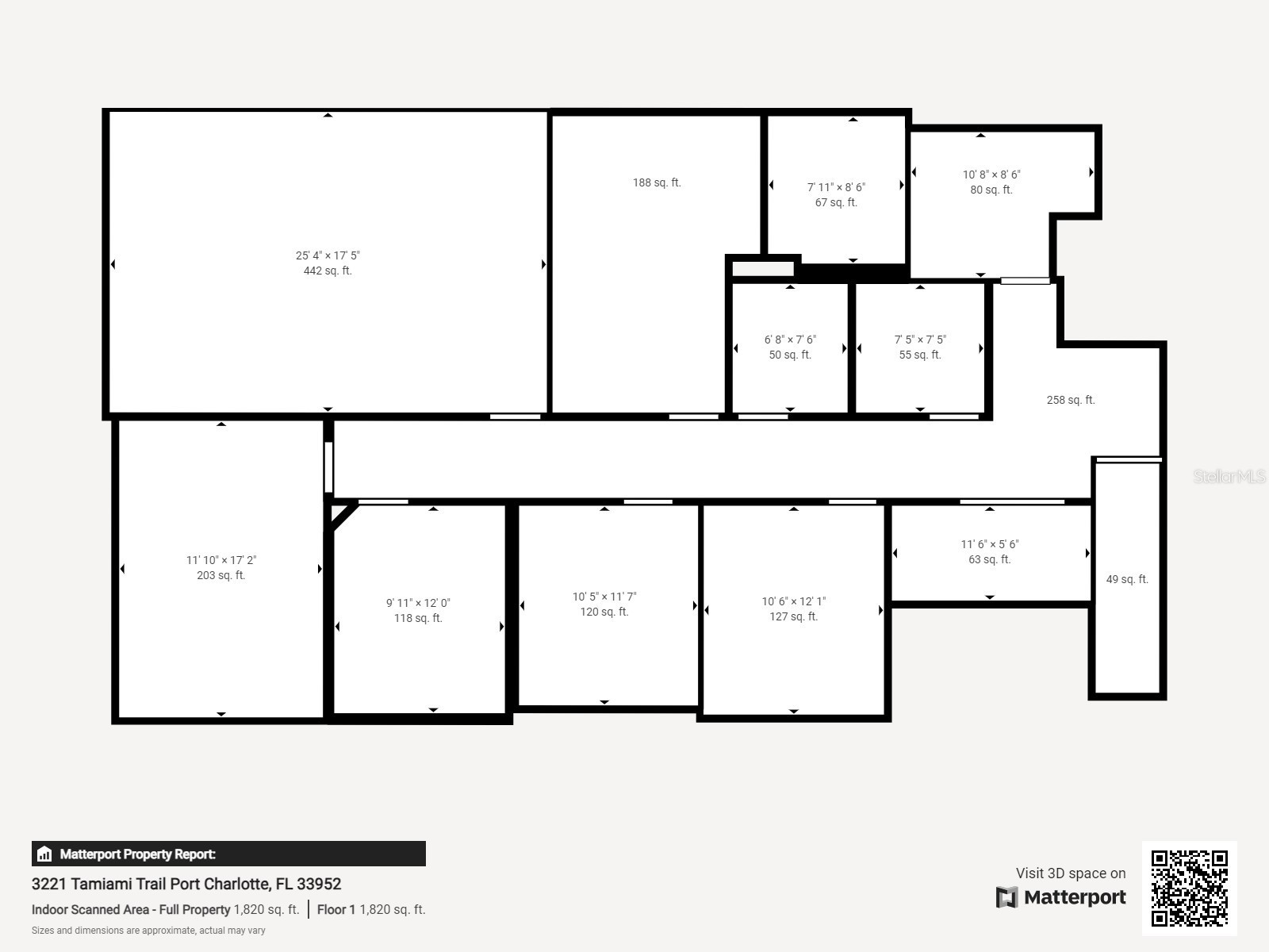
Description for 3221 Tamiami Trl #16, Port Charlotte, FL, 33952
Commercial space available for lease on second floor. This building's layout will work for general office use. Ideal for financial, real estate, technology services, attorney offices, etc. Elevator access to the second floor. The second floor has 1 restroom plus 5 rooms available; space would be approximately 1000 sq ft. With a prime corner location, there is parking on 2 sides of the building plus a large parking lot on the access road, as well as the vacant lot that adjoins the building. Take advantage of nearby attractions such as the scenic Port Charlotte Beach Park and the bustling Port Charlotte Town Center, which boasts an array of dining and retail options. With easy access to major thoroughfares, the property ensures seamless connectivity for commuters and visitors. Port Charlotte's thriving economy and business-friendly atmosphere make it an ideal setting for professional endeavors.
Listing Information
Property Type: Commercial, Business
Status: Active
Lot Size: 0.21 Acres
Year Built: 1960
Construction: Block
Subdivision: Port Charlotte Sec 002
Foundation: Slab
County: Charlotte
Utilities
Other Utilities: High Speed Internet Available,Phone Available
Cooling: Central Air
Exterior / Lot Features
Parking Description: Common
Roof: Metal
Additional Exterior/Lot Features: Corner Lot
Community Features
Community Features: Street Lights
Driving Directions
US 41, to 3221 Tamiami Trl. The building is on the southbound side.
Financial Considerations
Tenant Pays: Insurance
Owner Pays: Electricity,Water
Tax/Property ID: 402222179001C
Tax Amount: 14436
Tax Year: 2023
A broker reciprocity listing courtesy: KW PEACE RIVER PARTNERS
Based on information provided by Stellar MLS as distributed by the MLS GRID. Information from the Internet Data Exchange is provided exclusively for consumers’ personal, non-commercial use, and such information may not be used for any purpose other than to identify prospective properties consumers may be interested in purchasing. This data is deemed reliable but is not guaranteed to be accurate by Edina Realty, Inc., or by the MLS. Edina Realty, Inc., is not a multiple listing service (MLS), nor does it offer MLS access.
Copyright 2026 Stellar MLS as distributed by the MLS GRID. All Rights Reserved.
Sales History & Tax Summary for 3221 Tamiami Trl #16
Sales History
| Date | Price | |
|---|---|---|
| Currently not available. | ||
Tax Summary
| Tax Year | Estimated Market Value | Total Tax |
|---|---|---|
| Currently not available. | ||
Data powered by ATTOM Data Solutions. Copyright© 2026. Information deemed reliable but not guaranteed.
Schools
Schools nearby 3221 Tamiami Trl #16
| Schools in attendance boundaries | Grades | Distance | Rating |
|---|---|---|---|
| Loading... | |||
| Schools nearby | Grades | Distance | Rating |
|---|---|---|---|
| Loading... | |||
Data powered by ATTOM Data Solutions. Copyright© 2026. Information deemed reliable but not guaranteed.
The schools shown represent both the assigned schools and schools by distance based on local school and district attendance boundaries. Attendance boundaries change based on various factors and proximity does not guarantee enrollment eligibility. Please consult your real estate agent and/or the school district to confirm the schools this property is zoned to attend. Information is deemed reliable but not guaranteed.
SchoolDigger ® Rating
The SchoolDigger rating system is a 1-5 scale with 5 as the highest rating. SchoolDigger ranks schools based on test scores supplied by each state's Department of Education. They calculate an average standard score by normalizing and averaging each school's test scores across all tests and grades.
Coming soon properties will soon be on the market, but are not yet available for showings.