$2,200/month
3460 Chinotto Drive Lake Alfred, FL 33850
For Rent MLS# O6354260
4 beds 2 baths 1,824 sq ft Single Family
Details for 3460 Chinotto Drive
MLS# O6354260
Description for 3460 Chinotto Drive, Lake Alfred, FL, 33850
Be the first to live in this brand-new home at Gum Lake Preserve! This newly built 4-bedroom, 2-bath residence blends modern design, energy efficiency, and a prime Central Florida location in Lake Alfred, just minutes from I-4, US-17, shopping, dining, and local employers. The open-concept floor plan seamlessly connects the living, dining, and kitchen areas — creating a bright, spacious environment for daily living or entertaining. The modern kitchen features stainless-steel appliances, a central island, elegant surfaces, and abundant storage space. The primary suite includes a private bath with dual sinks, a walk-in shower, and a large walk-in closet. Three additional bedrooms offer flexibility for guests, a home office, or creative use. A two-car garage and energy-efficient systems add convenience and long-term value. The backyard provides the perfect space to relax outdoors or customize to your needs — ideal for weekend gatherings or quiet evenings. Surrounded by natural beauty, this new home offers comfort and low-maintenance living within a serene setting. Residents of Gum Lake Preserve enjoy lake access with a boat ramp, walking trails, a playground, and a picnic pavilion, combining outdoor recreation with modern community living. With quick access to Winter Haven, Auburndale, Haines City, and Orlando, plus attractions like Legoland Florida and Bok Tower Gardens, this location offers the best of Central Florida living. Experience the comfort, convenience, and style of a move-in-ready new home — available now for lease!
Listing Information
Property Type: Rental, Single Family Residence
Status: Active
Bedrooms: 4
Bathrooms: 2
Lot Size: 0.13 Acres
Square Feet: 1,824 sq ft
Year Built: 2025
Garage: Yes
Stories: 1 Story
Date Available: 10/27/2025
Construction Display: New Construction
Subdivision: Gum Lake 50's
Builder: Lennar Homes
County: Polk
Construction Status: New Construction
School Information
Elementary: Lake Alfred Elem
Middle: Stambaugh Middle
High: Auburndale High School
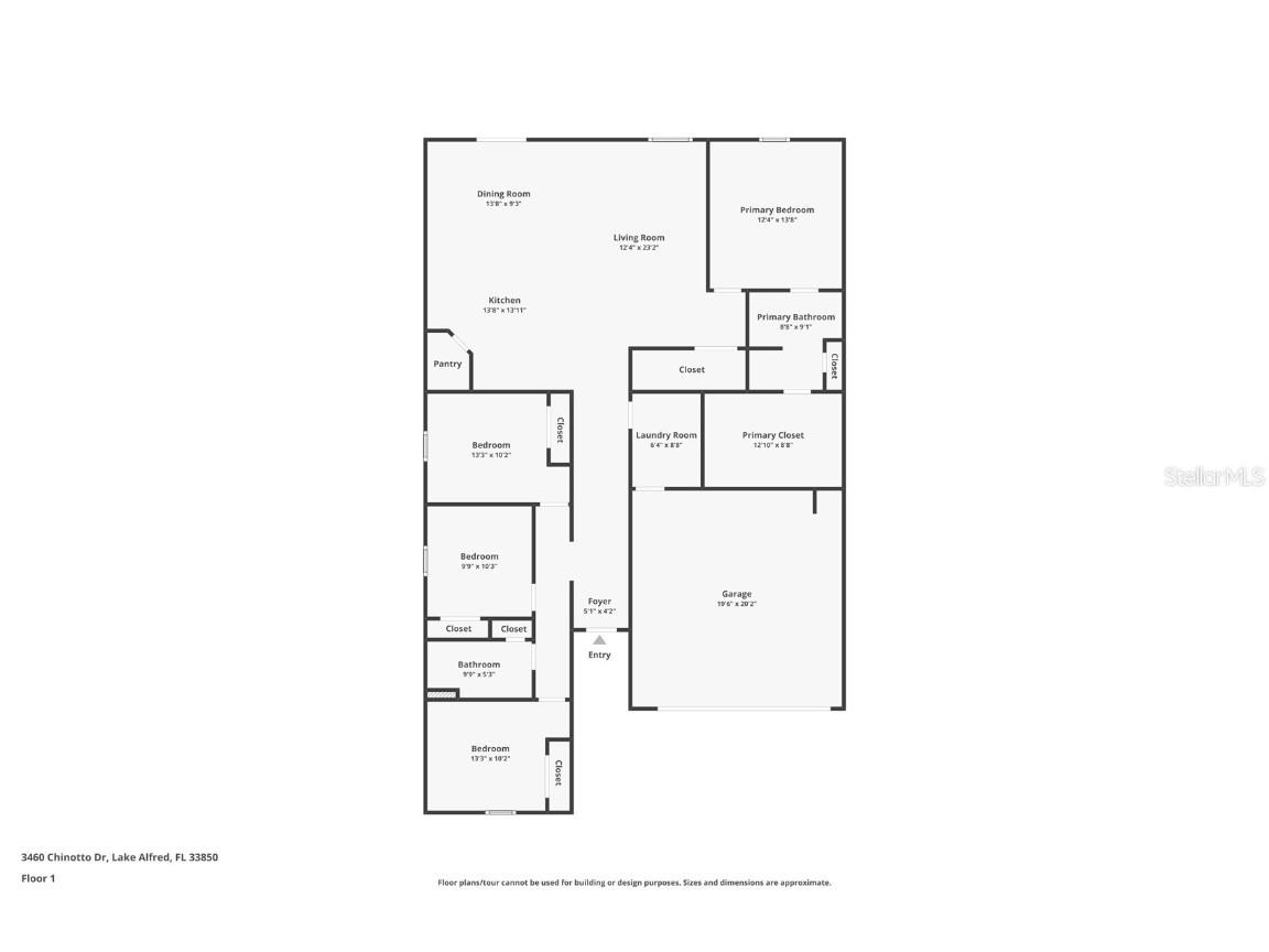
Room Information
Main Floor
Bedroom 4: 10x11
Bedroom 3: 10x10
Bedroom 2: 10x11
Primary Bedroom: 17x12
Kitchen: 10x13
Dining Room: 10x10
Great Room: 19x15
Bathrooms
Full Baths: 2
Additonal Room Information
Laundry: Inside
Interior Features
Appliances: Dishwasher, Disposal, Dryer, Microwave, Range, Refrigerator, Washer
Flooring: Carpet,Ceramic Tile
Doors/Windows: Thermal Windows, Blinds
Additional Interior Features: Walk-In Closet(s), Built-in Features, Kitchen/Family Room Combo, Open Floorplan, Solid Surface Counters, Wood Cabinets, Main Level Primary
Utilities
Water: Public
Sewer: Public Sewer
Other Utilities: Cable Available,Cable Connected,Electricity Available,Electricity Connected,Fiber Optic Available,Municipal Utilities,Underground Utilities
Cooling: Central Air
Heating: Central, Electric
Exterior / Lot Features
Attached Garage: Attached Garage
Garage Spaces: 2
Parking Description: Garage, Garage Door Opener, driveway
Additional Exterior/Lot Features: In-Wall Pest Control System, Sprinkler/Irrigation, Private Road
Community Features
Community Features: Playground, Street Lights, Boat Facilities
Security Features: Security System Owned, Smoke Detector(s)
Association Amenities: Playground, Trail(s)
Driving Directions
From Orlando, take I-4 West toward Tampa and exit at Exit 48 toward Lake Alfred/Winter Haven. Turn left onto County Road 557, then continue straight for about 3 miles until you reach US-17/92. Turn right onto US-17/92 North, and after about 1 mile, turn left onto Cass Road. Continue following the signs for Eden Hills Community, then turn right onto Chinotto Drive. The property at 3460 Chinotto Drive will be on your right-hand side.
Financial Considerations
Owner Pays: None
Tax/Property ID: 26-27-20-489403-000970
A broker reciprocity listing courtesy: DREAM FINDERS REALTY GROUP CORP
Based on information provided by Stellar MLS as distributed by the MLS GRID. Information from the Internet Data Exchange is provided exclusively for consumers’ personal, non-commercial use, and such information may not be used for any purpose other than to identify prospective properties consumers may be interested in purchasing. This data is deemed reliable but is not guaranteed to be accurate by Edina Realty, Inc., or by the MLS. Edina Realty, Inc., is not a multiple listing service (MLS), nor does it offer MLS access.
Copyright 2025 Stellar MLS as distributed by the MLS GRID. All Rights Reserved.
Sales History & Tax Summary for 3460 Chinotto Drive
Sales History
| Date | Price | Change |
|---|---|---|
| Currently not available. | ||
Tax Summary
| Tax Year | Estimated Market Value | Total Tax |
|---|---|---|
| Currently not available. | ||
Data powered by ATTOM Data Solutions. Copyright© 2025. Information deemed reliable but not guaranteed.
Schools
Schools nearby 3460 Chinotto Drive
| Schools in attendance boundaries | Grades | Distance | Rating |
|---|---|---|---|
| Loading... | |||
| Schools nearby | Grades | Distance | Rating |
|---|---|---|---|
| Loading... | |||
Data powered by ATTOM Data Solutions. Copyright© 2025. Information deemed reliable but not guaranteed.
The schools shown represent both the assigned schools and schools by distance based on local school and district attendance boundaries. Attendance boundaries change based on various factors and proximity does not guarantee enrollment eligibility. Please consult your real estate agent and/or the school district to confirm the schools this property is zoned to attend. Information is deemed reliable but not guaranteed.
SchoolDigger ® Rating
The SchoolDigger rating system is a 1-5 scale with 5 as the highest rating. SchoolDigger ranks schools based on test scores supplied by each state's Department of Education. They calculate an average standard score by normalizing and averaging each school's test scores across all tests and grades.
Coming soon properties will soon be on the market, but are not yet available for showings.