$7,800/month
3601 Coquina Key Drive SE Saint Petersburg, FL 33705
For Rent MLS# TB8464803
3 beds 3 baths 1,680 sq ft Single Family
Details for 3601 Coquina Key Drive SE
MLS# TB8464803
Description for 3601 Coquina Key Drive SE, Saint Petersburg, FL, 33705
One or more photo(s) has been virtually staged. Beautiful waterfront home with amazing views of Tampa Bay! Just over 1/3 acre and 180ft of seawall, this property offers many ways to enjoy outdoor living. A boaters dream! Rear balcony and patio overlook heated saltwater pool, spa with breath taking views. Relax in the shade from the large oaks near the dock and boatlift while catching a glimpse of a dolphin or manatee. While inside you will enjoy water views from most rooms. Spacious great room, dining, kitchen and half bath are on the second floor with 3 bedrooms and two baths tucked away downstairs for privacy. Convenient St. Pete location. Just a short drive to downtown St. Pete. Call for your private viewing today!
Listing Information
Property Type: Rental, Single Family Residence
Status: Active
Bedrooms: 3
Bathrooms: 3
Lot Size: 0.36 Acres
Square Feet: 1,680 sq ft
Year Built: 1979
Garage: Yes
Stories: 2 Story
Date Available: 1/15/2026
Subdivision: Coquina Key Sec 2
County: Pinellas
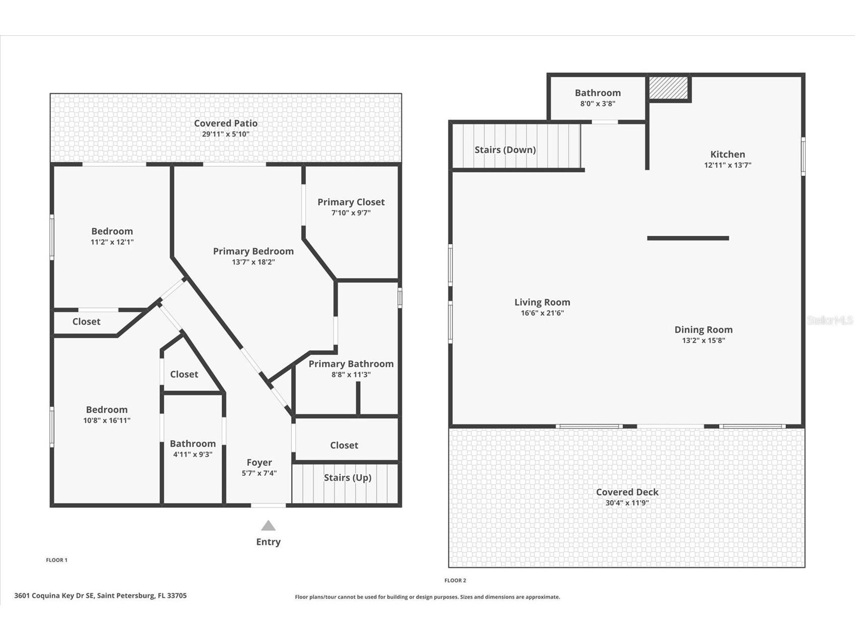
Room Information
Main Floor
Bedroom 3: 12x9
Bedroom 2: 14x9
Primary Bedroom: 16x10
Upper Floor
Kitchen: 13x12
Dining Room: 15x13
Great Room: 21x17
Bathrooms
Full Baths: 2
1/2 Baths: 1
Additonal Room Information
Laundry: In Garage
Interior Features
Appliances: Built-In Oven, Electric Water Heater, Microwave, Refrigerator, Washer, Cooktop, Dishwasher, Disposal, Dryer
Additional Interior Features: Walk-In Closet(s), Ceiling Fan(s)
Utilities
Cooling: Ceiling Fan(s), Central Air
Heating: Central
Exterior / Lot Features
Attached Garage: Attached Garage
Garage Spaces: 2
Pool: Heated, In Ground, Salt Water, Gunite
Lot View: Water
Fencing: Back Yard, fenced
Additional Exterior/Lot Features: Balcony, French Patio Doors, Front Porch, Rear Porch, Balcony, Covered
Waterfront Details
Water Front Features: Bay Access, Canal Access
Community Features
Security Deposit: 7800
Driving Directions
Lewis Blvd. SE to left on Beach Dr. SE. Right on Bluefish Dr. SE to left on Coquina Key Dr to house on cul-de-sac.
Financial Considerations
Tenant Pays: Janitorial Service
Owner Pays: None
Tax/Property ID: 05-32-17-18072-038-0160
A broker reciprocity listing courtesy: MIHARA & ASSOCIATES INC.
Based on information provided by Stellar MLS as distributed by the MLS GRID. Information from the Internet Data Exchange is provided exclusively for consumers’ personal, non-commercial use, and such information may not be used for any purpose other than to identify prospective properties consumers may be interested in purchasing. This data is deemed reliable but is not guaranteed to be accurate by Edina Realty, Inc., or by the MLS. Edina Realty, Inc., is not a multiple listing service (MLS), nor does it offer MLS access.
Copyright 2026 Stellar MLS as distributed by the MLS GRID. All Rights Reserved.
Sales History & Tax Summary for 3601 Coquina Key Drive SE
Sales History
| Date | Price | |
|---|---|---|
| Currently not available. | ||
Tax Summary
| Tax Year | Estimated Market Value | Total Tax |
|---|---|---|
| Currently not available. | ||
Data powered by ATTOM Data Solutions. Copyright© 2026. Information deemed reliable but not guaranteed.
Schools
Schools nearby 3601 Coquina Key Drive SE
| Schools in attendance boundaries | Grades | Distance | Rating |
|---|---|---|---|
| Loading... | |||
| Schools nearby | Grades | Distance | Rating |
|---|---|---|---|
| Loading... | |||
Data powered by ATTOM Data Solutions. Copyright© 2026. Information deemed reliable but not guaranteed.
The schools shown represent both the assigned schools and schools by distance based on local school and district attendance boundaries. Attendance boundaries change based on various factors and proximity does not guarantee enrollment eligibility. Please consult your real estate agent and/or the school district to confirm the schools this property is zoned to attend. Information is deemed reliable but not guaranteed.
SchoolDigger ® Rating
The SchoolDigger rating system is a 1-5 scale with 5 as the highest rating. SchoolDigger ranks schools based on test scores supplied by each state's Department of Education. They calculate an average standard score by normalizing and averaging each school's test scores across all tests and grades.
Coming soon properties will soon be on the market, but are not yet available for showings.