$2,650/month
Off-Market Date: 02/03/20263845 Rory Pond Ct #1 Lakeland, FL 33811
Pending MLS# TB8470174
5 beds 3 baths 2,696 sq ft Single Family
Details for 3845 Rory Pond Ct #1
MLS# TB8470174
Description for 3845 Rory Pond Ct #1, Lakeland, FL, 33811
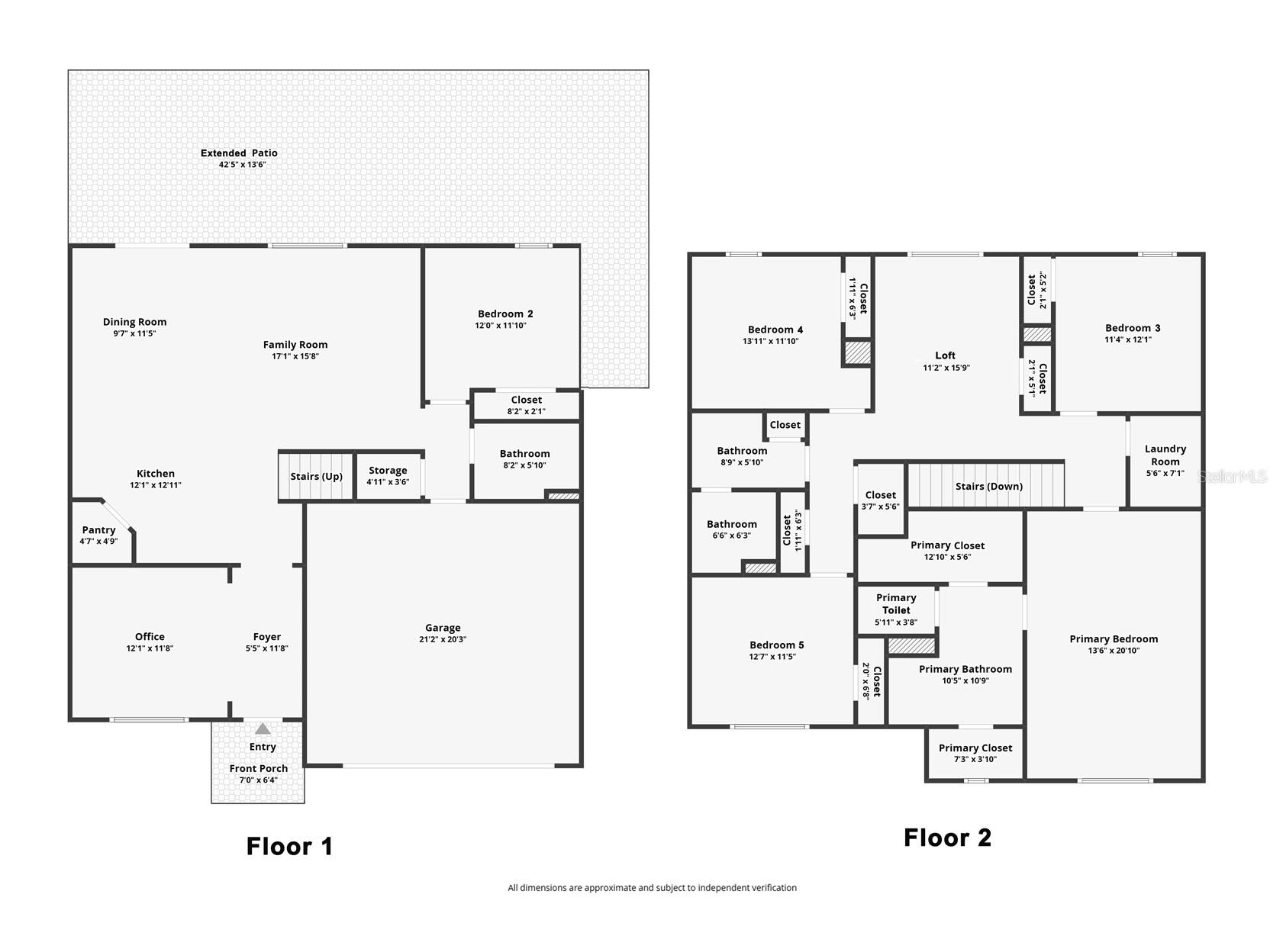
One or more photo(s) has been virtually staged. ***2025 NEWER HOME WITH PEACEFUL POND & SUNSET VIEWS ON A DEAD-END STREET, AND UPGRADED FEATURES*** This spacious home offers 5 BEDROOMS (including a 1st Floor Guest Bedroom), 3 BATHROOMS, a versatile OFFICE/FLEX/BONUS ROOM, and an additional LOFT to fit all your family’s needs. Located in the desirable LAKES AT LAUREL HIGHLANDS, you’ll enjoy resort-style amenities including a sparkling Pool, Clubhouse, Fitness Center, and Playground surrounded by nature. UPGRADED FEATURES INCLUDE: WATER SOFTENER, 1st-FLOOR WALK-IN SHOWER by Guest Bedroom, TILE FLOORING THROUGHOUT DOWNSTAIRS (NO CARPET), and a FULLY FENCED BACKYARD with a NEW OVERSIZED & EXTENDED PATIO—ideal for creating your dream outdoor oasis with tranquil WATER VIEWS and DAILY SUNSETS. An inviting foyer opens to a LARGE OFFICE/FLEX ROOM, perfect for work or relaxation. The OPEN-CONCEPT KITCHEN features rich dark SOLID WOOD CABINETS, STAINLESS STEEL APPLIANCES, GRANITE COUNTERTOPS, and a WALK-IN PANTRY, flowing seamlessly into the GREAT ROOM for easy entertaining and everyday living. From the dining area, sliding glass doors lead to your private OUTDOOR RETREAT. The downstairs also includes a GUEST BEDROOM with an ADJACENT FULL BATHROOM, providing privacy and comfort for visitors or in-laws. Upstairs, a cozy LOFT AREA makes a great playroom, den, or extra gathering space. Retreat to the spacious PRIMARY SUITE with Ensuite Bathroom, HIS & HERS WALK-IN CLOSETS, large walk-in shower, dual vanities, linen closet, and private toilet room. The remaining three bedrooms share a well-appointed bathroom with dual vanities and a separate tub/shower combo with toilet. The LAUNDRY ROOM is conveniently located upstairs to simplify daily chores. Conveniently located near the Polk Parkway, top Medical Facilities, Hospitals, Shopping, and Restaurants. Don’t miss the chance to make this exceptional home yours—schedule your showing today! ***THIS HOME IS ALSO FOR SALE, AND OWNERS WOULD CONSIDER A LEASE WITH OPTION TO BUY***
Listing Information
Property Type: Rental, Single Family Residence
Status: Pending
Bedrooms: 5
Bathrooms: 3
Lot Size: 0.13 Acres
Square Feet: 2,696 sq ft
Year Built: 2025
Garage: Yes
Stories: 2 Story
Date Available: 2/1/2026
Construction Display: New Construction
Builder: DR HORTON
County: Polk
Construction Status: New Construction
School Information
Elementary: R. Bruce Wagner Elem
Middle: Sleepy Hill Middle
High: Kathleen High
Room Information
Main Floor
Kitchen: 14x11
Living Room: 15.5x15
Bedroom 2:
Bonus Room: 12x11.5
Dining Room: 11.5x10
Upper Floor
Laundry:
Loft:
Bedroom 5: 12x11
Bedroom 4: 12x11
Bedroom 3: 12.5x11.5
Primary Bedroom: 20x13
Bathrooms
Full Baths: 3
Additonal Room Information
Laundry: Inside, Laundry Room, Upper Level
Interior Features
Appliances: Electric Water Heater, Water Softener, Washer, Range, Refrigerator, Dishwasher, Dryer, Microwave
Flooring: Carpet,Tile
Doors/Windows: Blinds, Double Pane Windows, Insulated Windows, Window Treatments
Additional Interior Features: Ceiling Fan(s), Loft, Walk-In Closet(s), Upper Level Primary, Window Treatments, Open Floorplan
Utilities
Water: Public
Sewer: Public Sewer
Other Utilities: Electricity Connected,High Speed Internet Available,Municipal Utilities,Sewer Connected,Water Connected
Cooling: Central Air, Ceiling Fan(s)
Heating: Electric, Central
Exterior / Lot Features
Attached Garage: Attached Garage
Garage Spaces: 2
Parking Description: driveway, Garage, Garage Door Opener
Pool: Gunite, Community, In Ground, Association
Lot View: Water
Additional Exterior/Lot Features: Rain Gutters, Sprinkler/Irrigation, Private Yard, Playground
Out Buildings: Gazebo
Waterfront Details
Water Front Features: Pond
Community Features
Community Features: Sidewalks, Pool, Playground, Clubhouse, Fitness, Recreation Area
Security Features: Smoke Detector(s)
Association Amenities: Clubhouse, Playground, Pool, Fitness Center
Security Deposit: 2650
Driving Directions
I-4 to Exit 27 Polk County Parkway. Exit 3 Airport Rd., north 1/2 mile to community entrance on right.
Financial Considerations
Owner Pays: Other,Recreational
Tax/Property ID: 34-28-23-138139-004230
A broker reciprocity listing courtesy: COLDWELL BANKER REALTY
Based on information provided by Stellar MLS as distributed by the MLS GRID. Information from the Internet Data Exchange is provided exclusively for consumers’ personal, non-commercial use, and such information may not be used for any purpose other than to identify prospective properties consumers may be interested in purchasing. This data is deemed reliable but is not guaranteed to be accurate by Edina Realty, Inc., or by the MLS. Edina Realty, Inc., is not a multiple listing service (MLS), nor does it offer MLS access.
Copyright 2026 Stellar MLS as distributed by the MLS GRID. All Rights Reserved.
Sales History & Tax Summary for 3845 Rory Pond Ct #1
Sales History
| Date | Price | |
|---|---|---|
| Currently not available. | ||
Tax Summary
| Tax Year | Estimated Market Value | Total Tax |
|---|---|---|
| Currently not available. | ||
Data powered by ATTOM Data Solutions. Copyright© 2026. Information deemed reliable but not guaranteed.
Schools
Schools nearby 3845 Rory Pond Ct #1
| Schools in attendance boundaries | Grades | Distance | Rating |
|---|---|---|---|
| Loading... | |||
| Schools nearby | Grades | Distance | Rating |
|---|---|---|---|
| Loading... | |||
Data powered by ATTOM Data Solutions. Copyright© 2026. Information deemed reliable but not guaranteed.
The schools shown represent both the assigned schools and schools by distance based on local school and district attendance boundaries. Attendance boundaries change based on various factors and proximity does not guarantee enrollment eligibility. Please consult your real estate agent and/or the school district to confirm the schools this property is zoned to attend. Information is deemed reliable but not guaranteed.
SchoolDigger ® Rating
The SchoolDigger rating system is a 1-5 scale with 5 as the highest rating. SchoolDigger ranks schools based on test scores supplied by each state's Department of Education. They calculate an average standard score by normalizing and averaging each school's test scores across all tests and grades.
Coming soon properties will soon be on the market, but are not yet available for showings.