$18/month
413 Wacouta Street Saint Paul, MN 55101
For Rent MLS# 6817155
49,920 sq ft Commercial
Details for 413 Wacouta Street
MLS# 6817155
Description for 413 Wacouta Street, Saint Paul, MN, 55101
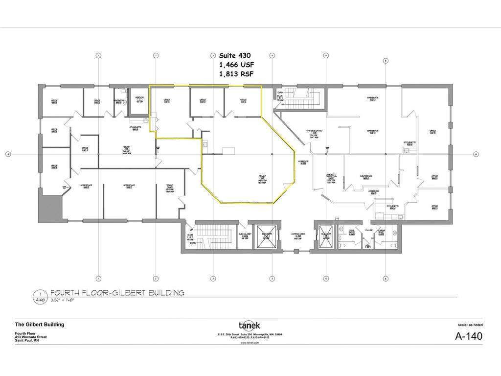
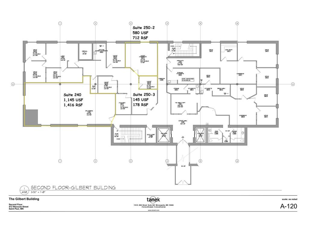
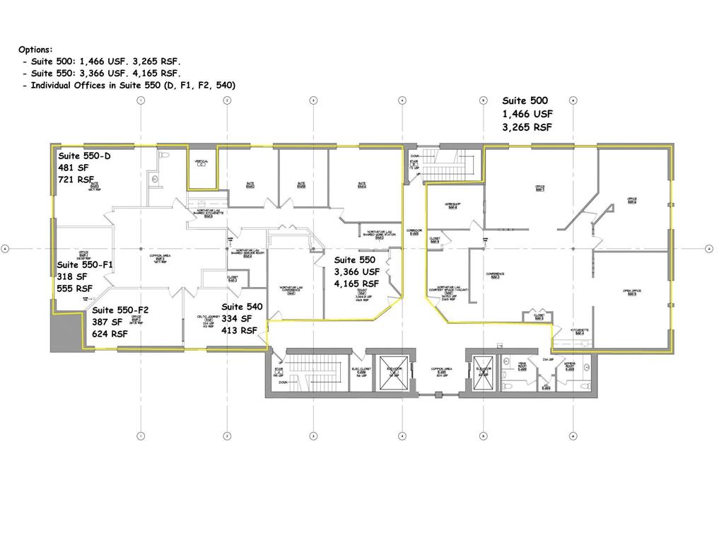
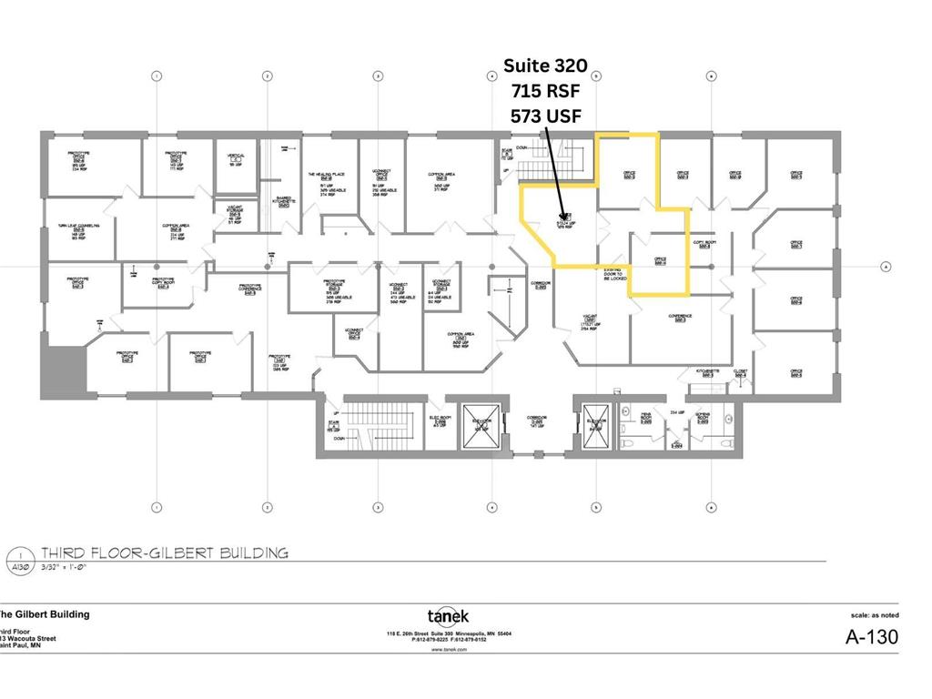
Very Competitive Lease Rates & Just Reduced! Current available spaces range from individual offices as small as 200 square feet up to full suites/floors with 10,463 square feet. Affordable Gross/Full-Service rates with landlord covering CAM/operating expenses, taxes, & utilities. Historic Brick & Timber Suites with great character and lots of natural light available in the Gilbert Building in the Lowertown area of Downtown St. Paul. Parking lot next to building for Gilbert Building Tenants and Visitor parking.Many other nearby parking options including cheap parking immediately behind the building, underground neighboring parking + 2nd floor skyway access. Other amenities include a great Full-time Property Manager on-site weekly, complimentary building conference room, comprehensive building cleaning, building security, 24/7 card access, & high-speed Wi-Fi. Many recent and modern updates throughout.
Listing Information
Property Type: Commercial, Office
Status: Active
Lot Size: 0.29 Acres
Square Feet: 49,920 sq ft
Year Built: 1894
Foundation: 49,920 sq ft
Subdivision: Whitney & Smiths Add
Number Of Units Total: 13
Current Use: Business Service,Commercial,Office,Professional Service
County: Ramsey
Days On Market: 111
Construction Status: Previously Owned
School Information
District: 625 - St. Paul
Utilities
Water: City Water/Connected
Sewer: City Sewer/Connected
Other Utilities: Electric Separate,Heating Separate,Hot Water Separate
Cooling: Central
Heating: Forced Air, Natural Gas
Exterior / Lot Features
Parking Description: Assigned, On-Street Parking Only
Exterior: Brick/Stone
Lot Dimensions: 100x150x101x149
Zoning: Business/Commercial
Additional Exterior/Lot Features: Land Inclusions - Other
Driving Directions
7th St E, left on Wacouta St.
Financial Considerations
Tax/Property ID: 312922440055
Tax Amount: 129066
Tax Year: 2023
HomeStead Description: Non-Homesteaded
A broker reciprocity listing courtesy: RE/MAX Results
The data relating to real estate for sale on this web site comes in part from the Broker Reciprocity℠ Program of the Regional Multiple Listing Service of Minnesota, Inc. Real estate listings held by brokerage firms other than Edina Realty, Inc. are marked with the Broker Reciprocity℠ logo or the Broker Reciprocity℠ thumbnail and detailed information about them includes the name of the listing brokers. Edina Realty, Inc. is not a Multiple Listing Service (MLS), nor does it offer MLS access. This website is a service of Edina Realty, Inc., a broker Participant of the Regional Multiple Listing Service of Minnesota, Inc. IDX information is provided exclusively for consumers personal, non-commercial use and may not be used for any purpose other than to identify prospective properties consumers may be interested in purchasing. Open House information is subject to change without notice. Information deemed reliable but not guaranteed.
Copyright 2026 Regional Multiple Listing Service of Minnesota, Inc. All Rights Reserved.
Sales History & Tax Summary for 413 Wacouta Street
Sales History
| Date | Price | |
|---|---|---|
| Currently not available. | ||
Tax Summary
| Tax Year | Estimated Market Value | Total Tax |
|---|---|---|
| Currently not available. | ||
Data powered by ATTOM Data Solutions. Copyright© 2026. Information deemed reliable but not guaranteed.
Schools
Schools nearby 413 Wacouta Street
| Schools in attendance boundaries | Grades | Distance | Rating |
|---|---|---|---|
| Loading... | |||
| Schools nearby | Grades | Distance | Rating |
|---|---|---|---|
| Loading... | |||
Data powered by ATTOM Data Solutions. Copyright© 2026. Information deemed reliable but not guaranteed.
The schools shown represent both the assigned schools and schools by distance based on local school and district attendance boundaries. Attendance boundaries change based on various factors and proximity does not guarantee enrollment eligibility. Please consult your real estate agent and/or the school district to confirm the schools this property is zoned to attend. Information is deemed reliable but not guaranteed.
SchoolDigger ® Rating
The SchoolDigger rating system is a 1-5 scale with 5 as the highest rating. SchoolDigger ranks schools based on test scores supplied by each state's Department of Education. They calculate an average standard score by normalizing and averaging each school's test scores across all tests and grades.
Coming soon properties will soon be on the market, but are not yet available for showings.