5101 8th Avenue S Gulfport, FL 33707
Pending MLS# TB8412637
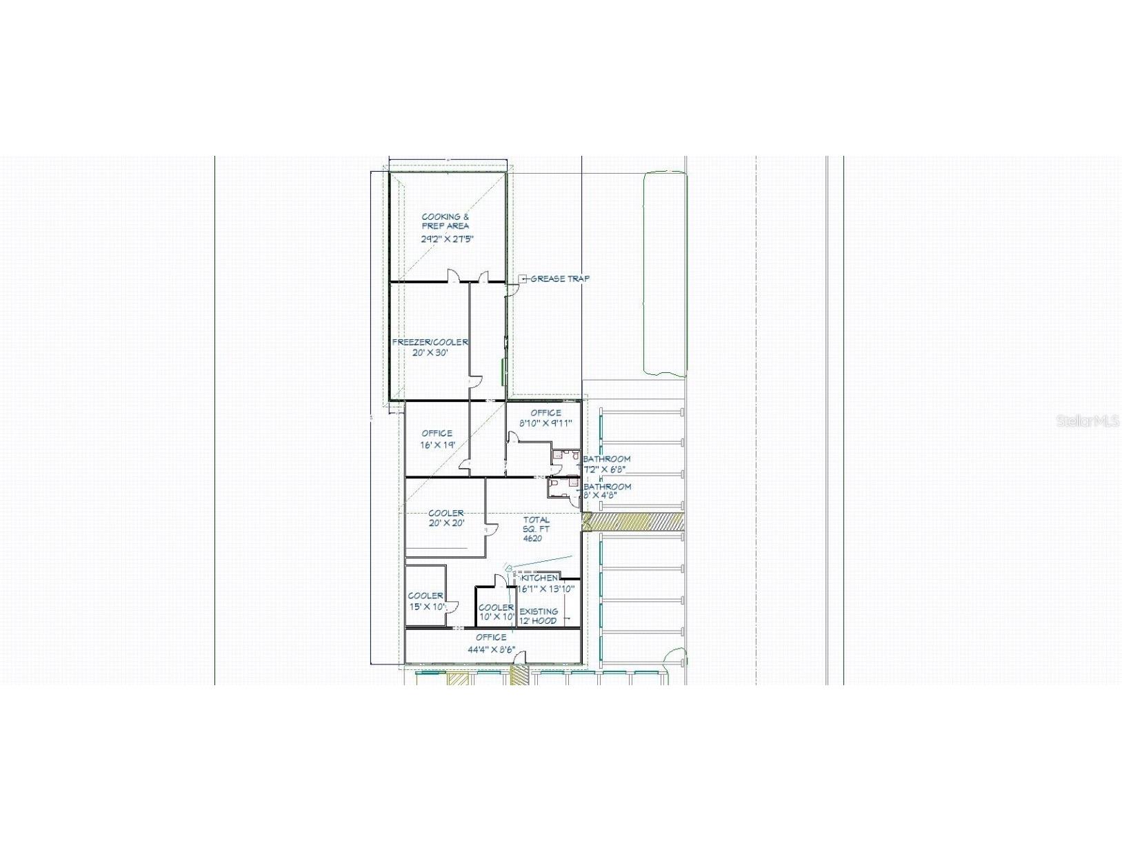
4,620 sq ft Commercial
Details for 5101 8th Avenue S
MLS# TB8412637
Description for 5101 8th Avenue S, Gulfport, FL, 33707
Under contract-accepting backup offers. One or more photo(s) has been virtually staged. Coming Soon - The Property is being completely renovated and will be available early October An exceptional 4,620 SF fully renovated commercial kitchen space available in early October 2025 for lease in Gulfport, FL. This premium facility has undergone comprehensive top-to-bottom renovations, creating a turn-key environment ready for immediate operation. Ideal for catering operations, food manufacturing ventures, distribution, food truck assembly, and specialty food businesses seeking a professional-grade facility. The versatile layout accommodates various culinary concepts and specialized food production operations, and ghost kitchen setups. This unique space provides the perfect foundation for both established food businesses looking to expand or emerging culinary ventures. The Property Features Kitchen area with a 12-foot commercial hood. 4 walk-in freezers/coolers, approximately 1200 sq ft. total. The main freezer and exterior roll-up door are pallet accessible for truck loading. Large prep area with a 3-bay sink. "Option to add 2 additional 12-foot hoods or baking equipment". Parking area in the rear, "Option to store food trucks". Grease trap. Three new HVAC systems are zoned to optimize the building's temperature. 3-phase electric with 400 amps and room to expand amps.
Listing Information
Property Type: Commercial, Business
Status: Pending
Lot Size: 0.14 Acres
Square Feet: 4,620 sq ft
Year Built: 1975
Construction: Block,Stucco
Construction Display: New Construction
Subdivision: Ardmore Heights
Foundation: Slab
County: Pinellas
Construction Status: Under Renovation
Utilities
Sewer: Public Sewer
Other Utilities: Electricity Available,Natural Gas Available,High Speed Internet Available,Municipal Utilities,Phone Available,Water Connected
Cooling: Central Air
Heating: Central, Natural Gas
Exterior / Lot Features
Parking Description: Parking Space(s)
Roof: Membrane, Shingle
Additional Exterior/Lot Features: Fence
Community Features
Security Features: Smoke Detector(s)
Driving Directions
Take 49th St. to 8th Ave S and head west. The property is down on the left.
Financial Considerations
Tenant Pays: Common Area Maintenance,Electricity,Gas,Insurance,Sewer,Taxes,Trash Collection,Water
Owner Pays: None
Tax/Property ID: 28-31-16-01458-003-0010
Tax Amount: 3828
Tax Year: 2024
A broker reciprocity listing courtesy: INSTA REAL ESTATE SOLUTIONS
Based on information provided by Stellar MLS as distributed by the MLS GRID. Information from the Internet Data Exchange is provided exclusively for consumers’ personal, non-commercial use, and such information may not be used for any purpose other than to identify prospective properties consumers may be interested in purchasing. This data is deemed reliable but is not guaranteed to be accurate by Edina Realty, Inc., or by the MLS. Edina Realty, Inc., is not a multiple listing service (MLS), nor does it offer MLS access.
Copyright 2025 Stellar MLS as distributed by the MLS GRID. All Rights Reserved.
Sales History & Tax Summary for 5101 8th Avenue S
Sales History
| Date | Price | Change |
|---|---|---|
| Currently not available. | ||
Tax Summary
| Tax Year | Estimated Market Value | Total Tax |
|---|---|---|
| Currently not available. | ||
Data powered by ATTOM Data Solutions. Copyright© 2025. Information deemed reliable but not guaranteed.
Schools
Schools nearby 5101 8th Avenue S
| Schools in attendance boundaries | Grades | Distance | Rating |
|---|---|---|---|
| Loading... | |||
| Schools nearby | Grades | Distance | Rating |
|---|---|---|---|
| Loading... | |||
Data powered by ATTOM Data Solutions. Copyright© 2025. Information deemed reliable but not guaranteed.
The schools shown represent both the assigned schools and schools by distance based on local school and district attendance boundaries. Attendance boundaries change based on various factors and proximity does not guarantee enrollment eligibility. Please consult your real estate agent and/or the school district to confirm the schools this property is zoned to attend. Information is deemed reliable but not guaranteed.
SchoolDigger ® Rating
The SchoolDigger rating system is a 1-5 scale with 5 as the highest rating. SchoolDigger ranks schools based on test scores supplied by each state's Department of Education. They calculate an average standard score by normalizing and averaging each school's test scores across all tests and grades.
Coming soon properties will soon be on the market, but are not yet available for showings.