5236 Golden Gate Parkway Naples, FL 34116
For Rent MLS# 223043372
Commercial
Details for 5236 Golden Gate Parkway
MLS# 223043372
Description for 5236 Golden Gate Parkway, Naples, FL, 34116
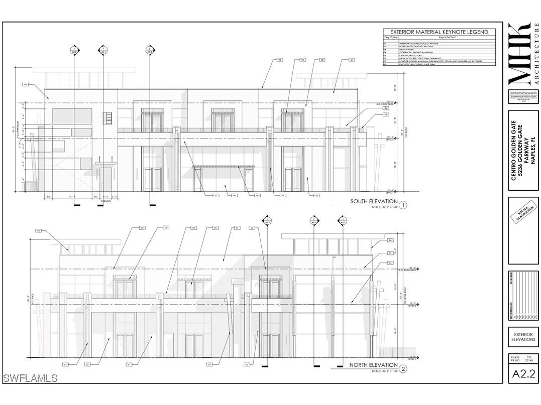
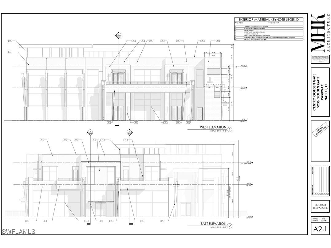
Restaurant space with waterfront deck available for lease! The full restaurant space is ~3,700 s/f interior plus a ~1,300 s/f waterfront deck. It may be possible to subdivide the space depending on the concept. Space to be delivered as a grey shell with grease traps in place. CAM estimated at $4-5/foot. CENTRO is a first of its kind Class-A mixed use building in Golden Gate City. Designed by MHK Architecture. This property is also located in a Federally Designated Opportunity Zone and a Collier County Innovation Zone, tax and other incentives may be available for individuals and businesses. This building is under construction, expected completion Spring/Summer 2026. The first floor will feature the restaurant/bar space and Elite Salon Suites. The second floor will have executive offices offices ranging from 40 to 800 square feet.
Listing Information
Property Type: Commercial, Retail, Retail,Commercial
Status: Active
Lot Size: 1.10 Acres
Year Built: 2025
Stories: 2 Story
Construction Display: New Construction
County: Collier
Days On Market: 886
Construction Status: Under Construction
Utilities
Other Utilities: Electricity Available,Sewer Available,Water Available
Waterfront Details
Water Front Features: Canal Access, Navigable Water
Community Features
Security Features: Fire Sprinkler System
Financial Considerations
Tax/Property ID: 45999300067
Tax Amount: 2762.6
Tax Year: 2022
A broker reciprocity listing courtesy: Pikus Realty PA
Based on information provided by FGCMLS. Internet Data Exchange information is provided exclusively for consumers’ personal, non-commercial use, and such information may not be used for any purpose other than to identify prospective properties consumers may be interested in purchasing. This data is deemed reliable but is not guaranteed to be accurate by Edina Realty, Inc., or by the MLS. Edina Realty, Inc., is not a multiple listing service (MLS), nor does it offer MLS access.
Copyright 2025 FGCMLS. All Rights Reserved.
Sales History & Tax Summary for 5236 Golden Gate Parkway
Sales History
| Date | Price | Change |
|---|---|---|
| Currently not available. | ||
Tax Summary
| Tax Year | Estimated Market Value | Total Tax |
|---|---|---|
| Currently not available. | ||
Data powered by ATTOM Data Solutions. Copyright© 2025. Information deemed reliable but not guaranteed.
Schools
Schools nearby 5236 Golden Gate Parkway
| Schools in attendance boundaries | Grades | Distance | Rating |
|---|---|---|---|
| Loading... | |||
| Schools nearby | Grades | Distance | Rating |
|---|---|---|---|
| Loading... | |||
Data powered by ATTOM Data Solutions. Copyright© 2025. Information deemed reliable but not guaranteed.
The schools shown represent both the assigned schools and schools by distance based on local school and district attendance boundaries. Attendance boundaries change based on various factors and proximity does not guarantee enrollment eligibility. Please consult your real estate agent and/or the school district to confirm the schools this property is zoned to attend. Information is deemed reliable but not guaranteed.
SchoolDigger ® Rating
The SchoolDigger rating system is a 1-5 scale with 5 as the highest rating. SchoolDigger ranks schools based on test scores supplied by each state's Department of Education. They calculate an average standard score by normalizing and averaging each school's test scores across all tests and grades.
Coming soon properties will soon be on the market, but are not yet available for showings.