$4,000/month
530 5th Street W #4 Boca Grande, FL 33921
For Rent MLS# D6143503
2 beds 3 baths 1,248 sq ft Condo
Details for 530 5th Street W #4
MLS# D6143503
Description for 530 5th Street W #4, Boca Grande, FL, 33921
Weekly rate shown, please see description for detailed pricing. Welcome to Park Place #4 — a refined townhome in the heart of Boca Grande’s Historic District. Perfectly situated within a short distance of the Gulf’s pristine shoreline, boutique shops, art galleries, and charming dining. This two-bedroom, two-bath residence combines coastal elegance with modern comforts to create an unforgettable island retreat. The interior is filled with natural light, featuring an open living area with comfortable seating and large windows that frame views of the true entrance to Downtown. The fully equipped kitchen is designed with modern appliances and thoughtful details, making it easy to prepare everything from casual breakfasts to gourmet dinners. The adjacent dining space provides the ideal setting for enjoying meals that linger into the evening. Each of the two bedrooms includes a private en-suite bath, ensuring both comfort and convenience. One bedroom features a queen bed, while the second is designed with a versatile queen Murphy bed—offering flexibility for families or couples traveling together. Multiple balconies extend the living space outdoors, providing perfect spots for morning coffee, an afternoon read, or evening cocktails as the sun sets over the island. Amenities include central air conditioning, high-speed Wi-Fi, smart lock entry, and an in-unit washer and dryer. Dedicated parking adds ease to your stay, while the location places you at the gateway to Boca Grande’s natural beauty and recreation. Spend your days fishing, kayaking, paddleboarding, or snorkeling, or simply unwind along seven miles of pristine beaches lapped by turquoise waters. Boca Grande is celebrated for its unique blend of relaxed island charm and refined elegance. From fine dining and boutique shopping to historic landmarks and cultural attractions, the Historic District offers an experience like no other. Park Place #4 captures it all—an elegant retreat in an extraordinary location, offering the perfect balance of luxury, comfort, and convenience. Off-season: $3000 weekly/$12857.10 monthly Mid-season: $4000 weekly/$17142.90 monthly In-season: $5000 weekly/$21428.70 monthly
Listing Information
Property Type: Rental, Condominium
Status: Active
Bedrooms: 2
Bathrooms: 3
Lot Size: 0.02 Acres
Square Feet: 1,248 sq ft
Year Built: 1981
Garage: Yes
Stories: 3 Story
Date Available: 9/6/2025
Subdivision: Park Place Colony
Furnished: Yes
County: Lee
Days On Market: 3
School Information
Elementary: The Island School
Middle: L.A. Ainger Middle
High: Lemon Bay High
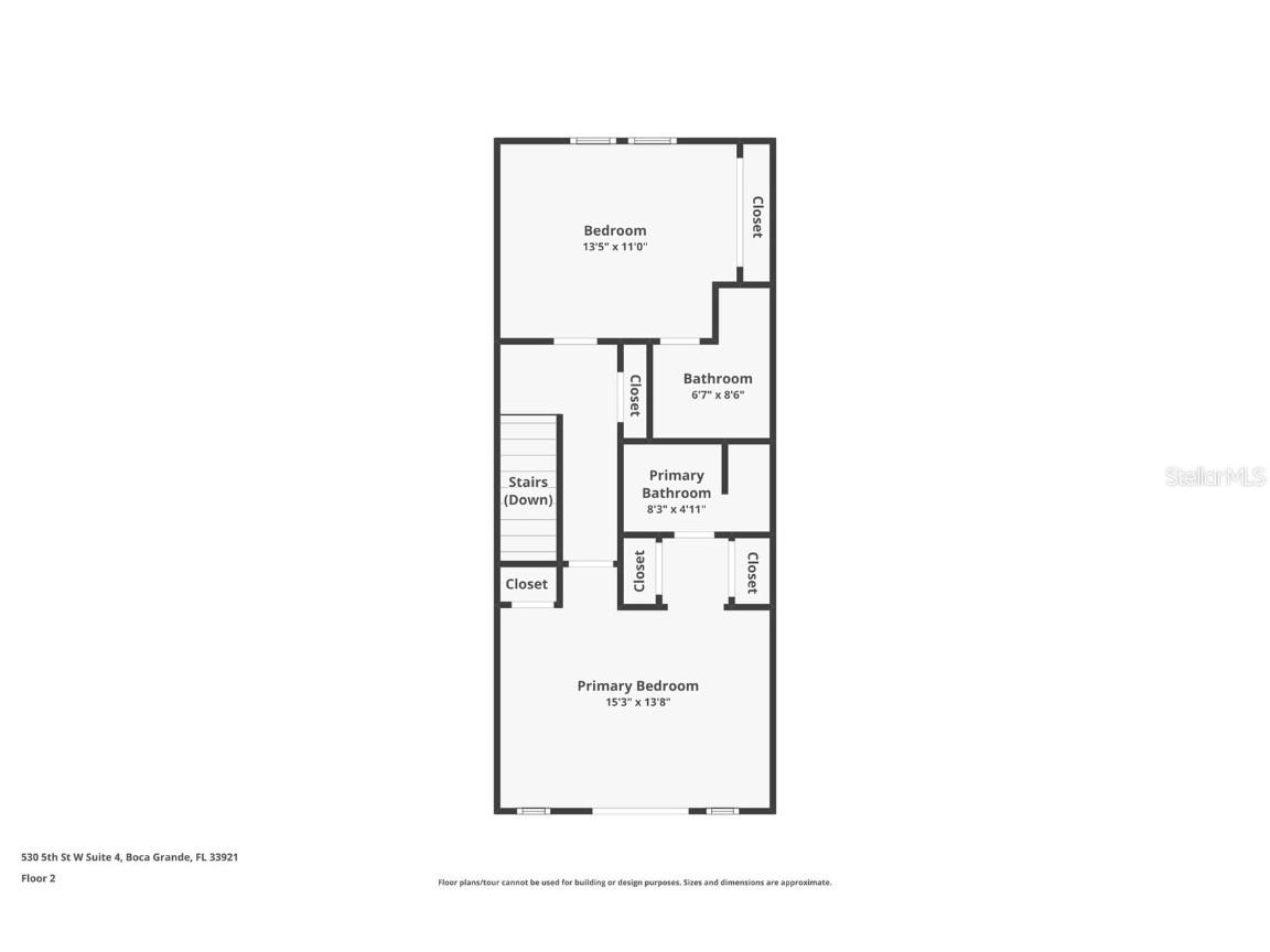
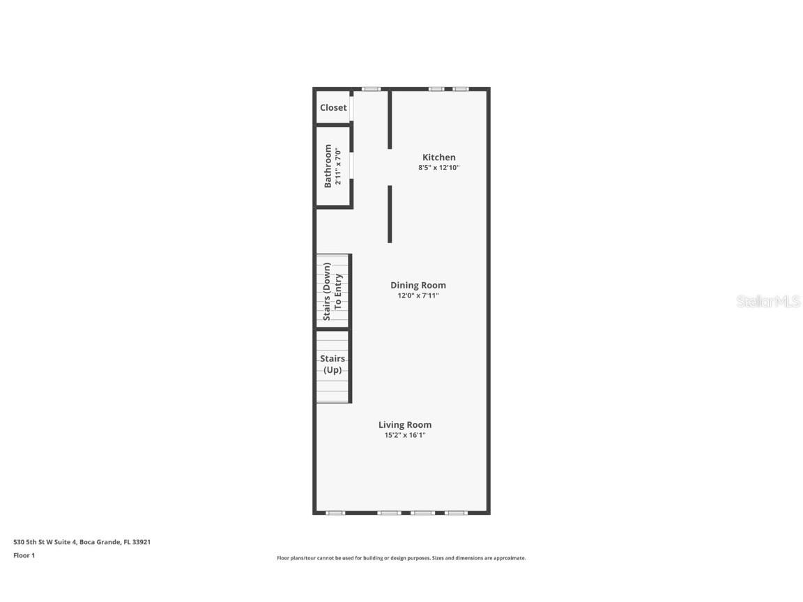
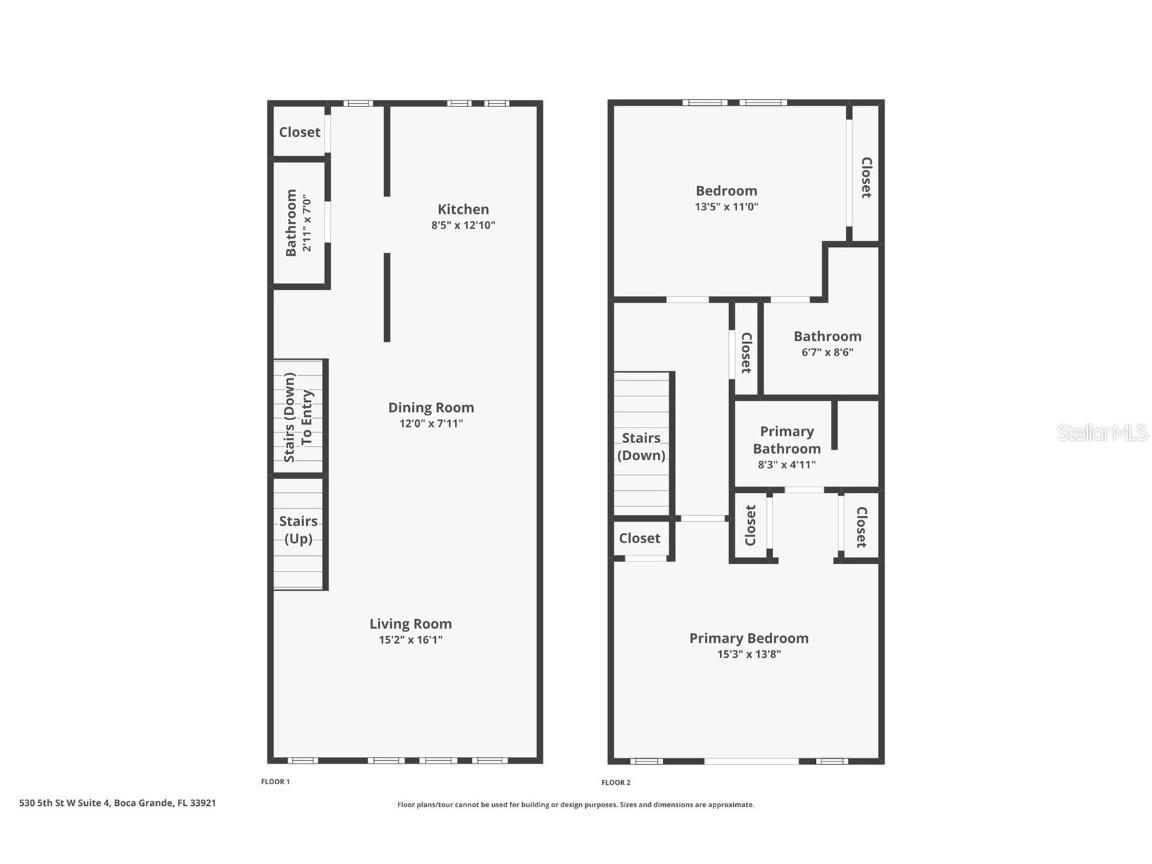
Room Information
Upper Floor
Living Room:
Bathroom 2:
Bedroom 2:
Bathrooms
Full Baths: 2
1/2 Baths: 1
Additonal Room Information
Laundry: In Garage
Interior Features
Appliances: Electric Water Heater, Washer, Microwave, Range, Refrigerator, Dishwasher, Disposal, Dryer, Freezer
Flooring: Porcelain Tile
Doors/Windows: Window Treatments, Blinds
Additional Interior Features: Ceiling Fan(s), Eat-In Kitchen, Window Treatments, Living/Dining Room, Solid Surface Counters, Upper Level Primary
Utilities
Water: Private
Sewer: Private Sewer
Other Utilities: Cable Connected,Electricity Connected,Sewer Connected,Water Connected
Cooling: Central Air, Ceiling Fan(s)
Heating: Central
Exterior / Lot Features
Attached Garage: Attached Garage
Garage Spaces: 2
Parking Description: Golf Cart Garage, Garage Door Opener, Garage
Additional Exterior/Lot Features: French Patio Doors, Balcony, Balcony, City Lot
Community Features
Community Features: Street Lights, Sidewalks
Security Features: Smoke Detector(s), Fire Hydrant(s)
Driving Directions
776 to Placida Rd or Gasparilla Rd. Go south to Boca Grande Causeway. Turn onto Boca Grande Causeway and continue south turn right onto 5th street, make a u-turn at Gilchrist Ave, turn right into property.
Financial Considerations
Owner Pays: Cable TV,Electricity,Internet,Management,Pest Control,Sewer,Taxes,Trash Collection,Water
Tax/Property ID: 14-43-20-05-00000.0040
A broker reciprocity listing courtesy: PARSLEY BALDWIN REAL ESTATE
Based on information provided by Stellar MLS as distributed by the MLS GRID. Information from the Internet Data Exchange is provided exclusively for consumers’ personal, non-commercial use, and such information may not be used for any purpose other than to identify prospective properties consumers may be interested in purchasing. This data is deemed reliable but is not guaranteed to be accurate by Edina Realty, Inc., or by the MLS. Edina Realty, Inc., is not a multiple listing service (MLS), nor does it offer MLS access.
Copyright 2026 Stellar MLS as distributed by the MLS GRID. All Rights Reserved.
Sales History & Tax Summary for 530 5th Street W #4
Sales History
| Date | Price | |
|---|---|---|
| Currently not available. | ||
Tax Summary
| Tax Year | Estimated Market Value | Total Tax |
|---|---|---|
| Currently not available. | ||
Data powered by ATTOM Data Solutions. Copyright© 2026. Information deemed reliable but not guaranteed.
Schools
Schools nearby 530 5th Street W #4
| Schools in attendance boundaries | Grades | Distance | Rating |
|---|---|---|---|
| Loading... | |||
| Schools nearby | Grades | Distance | Rating |
|---|---|---|---|
| Loading... | |||
Data powered by ATTOM Data Solutions. Copyright© 2026. Information deemed reliable but not guaranteed.
The schools shown represent both the assigned schools and schools by distance based on local school and district attendance boundaries. Attendance boundaries change based on various factors and proximity does not guarantee enrollment eligibility. Please consult your real estate agent and/or the school district to confirm the schools this property is zoned to attend. Information is deemed reliable but not guaranteed.
SchoolDigger ® Rating
The SchoolDigger rating system is a 1-5 scale with 5 as the highest rating. SchoolDigger ranks schools based on test scores supplied by each state's Department of Education. They calculate an average standard score by normalizing and averaging each school's test scores across all tests and grades.
Coming soon properties will soon be on the market, but are not yet available for showings.