$3,500/month
6021 Boca Grande Causeway #G80 Boca Grande, FL 33921 - GULF
For Rent MLS# D6143273
2 beds 2 baths 1,248 sq ft Condo
Details for 6021 Boca Grande Causeway #G80
MLS# D6143273
Description for 6021 Boca Grande Causeway #G80, Boca Grande, FL, 33921 - GULF
Weekly rate shown, please see description for detailed pricing. Welcome to Boca Grande North #80 – Sunlit Serenity Experience the ultimate island retreat at this elegant two-bedroom, two-bathroom condo perched on the coveted North End of Boca Grande. Perfectly designed for up to six guests, this coastal haven blends refined comfort with sweeping Gulf views that will take your breath away. Inside, natural light fills the open living area, where soft coastal hues and upscale furnishings create a serene ambiance. The spacious primary suite offers a plush king bed, private bath, and direct access to water views—an idyllic sanctuary for unwinding. The expansive guest suite features two queen beds, ideal for couples, friends, or family seeking comfort and privacy. From your private lanai, soak in panoramic views of the turquoise Gulf, where dolphins play and golden sunsets paint the horizon. Start your mornings with coffee against the backdrop of sea breezes or wind down with a glass of wine as the sky transforms at dusk. The fully equipped kitchen is a delight for any cook, featuring sleek appliances, ample counter space, and a welcoming island for casual dining. Share meals around the dining table or enjoy the seamless flow of indoor-outdoor living. Beyond the condo, Boca Grande North offers exclusive amenities including a sparkling pool, tennis courts, and boat slips (available for an additional fee). Please note the pool and tennis courts are currently under renovation, with completion anticipated by March 1st. Beach essentials such as chairs, umbrellas, and towels are also provided for carefree days by the shore. Just a short drive from the historic district, you’ll find Boca Grande’s charming boutiques, art galleries, and acclaimed restaurants. Explore the island’s rich heritage, bike beneath century-old banyan trees, or cast a line into the world-famous Boca Grande Pass. From golfing and boating to kayaking among mangroves, every adventure is within reach. At Sunlit Serenity, the beauty of Boca Grande surrounds you at every turn. Book your stay today and indulge in the rare combination of luxury, tranquility, and Gulf-front splendor. Off-season: $2975 weekly/$12750 monthly Mid-season: $3500 weekly/$15000 monthly In-season: $3900 weekly/$16715 monthly
Listing Information
Property Type: Rental, Condominium
Status: Active
Bedrooms: 2
Bathrooms: 2
Lot Size: 0.04 Acres
Square Feet: 1,248 sq ft
Year Built: 1985
Stories: 2 Story
Date Available: 9/25/2025
Subdivision: Boca Grande North
County: Charlotte
School Information
Elementary: The Island School
Middle: L.A. Ainger Middle
High: Lemon Bay High
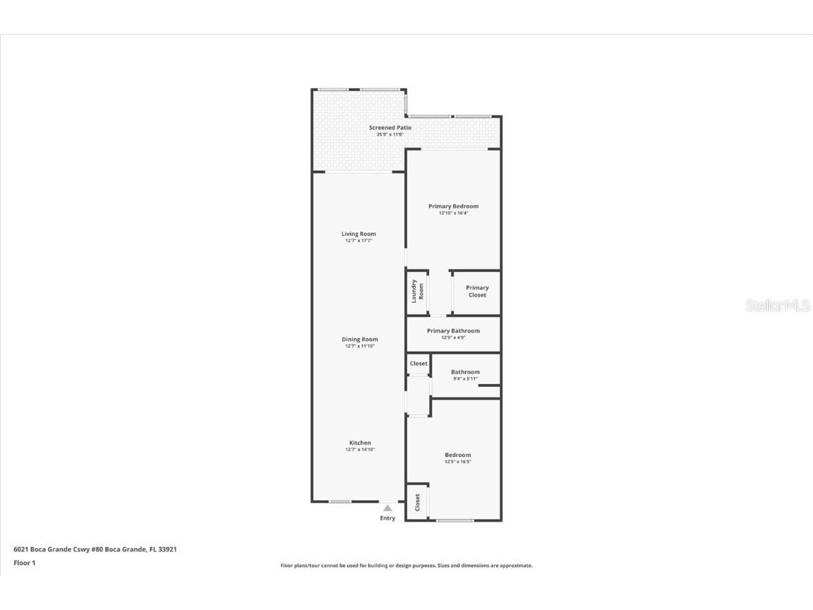
Room Information
Main Floor
Bathroom 2:
Primary Bedroom: 15x12
Primary Bathroom:
Living Room: 20x12
Kitchen: 13x8
Dining Room: 10x12
Bedroom 2: 14x12
Bathrooms
Full Baths: 2
Additonal Room Information
Laundry: Laundry Closet
Interior Features
Appliances: Ice Maker, Exhaust Fan, Dryer, Freezer, Microwave, Dishwasher, Disposal, Range, Refrigerator, Cooktop, Electric Water Heater, Washer
Flooring: Luxury Vinyl,Tile
Basement: Crawl Space
Doors/Windows: Drapes, Window Treatments, Blinds
Additional Interior Features: Window Treatments, Eat-In Kitchen, Ceiling Fan(s), Living/Dining Room, Main Level Primary, Built-in Features, High Ceilings, Open Floorplan, Stone Counters
Utilities
Water: Private
Sewer: Private Sewer
Other Utilities: Cable Connected,Electricity Connected,Sewer Connected,Underground Utilities,Water Connected
Cooling: Ceiling Fan(s), Central Air
Heating: Central
Exterior / Lot Features
Parking Description: None, Common
Pool: Community
Lot View: Water
Additional Exterior/Lot Features: Outdoor Grill, Balcony, Tennis Court(s), Screened, Balcony, Deck, Covered, Front Porch, Rear Porch, Landscaped
Out Buildings: Tennis Court(s)
Waterfront Details
Standard Water Body: GULF
Community Features
Community Features: Pool, Tennis Court(s), Sidewalks, Street Lights, Dock, Gated, Golf Carts OK, Fishing
Security Features: Fire Alarm, Fire Hydrant(s), Smoke Detector(s), Gated Community
Association Amenities: Gated, Spa/Hot Tub, Pickleball, Maintenance Grounds, Tennis Court(s), Clubhouse, Cable TV
Driving Directions
776 to Placida Rd or Gasparilla Rd. Go south to Boca Grande Causeway. Turn onto Boca Grande Causeway and continue south. Turn right into Boca Grande North and use gate code provided. Turn right and property is on the left.
Financial Considerations
Owner Pays: Cable TV,Electricity,Grounds Care,Insurance,Internet,Laundry,Management,Pest Control,Pool Maintenance,Sewer,Taxes,Trash Collection,Water
Tax/Property ID: 422026701080
A broker reciprocity listing courtesy: PARSLEY BALDWIN REAL ESTATE
Based on information provided by Stellar MLS as distributed by the MLS GRID. Information from the Internet Data Exchange is provided exclusively for consumers’ personal, non-commercial use, and such information may not be used for any purpose other than to identify prospective properties consumers may be interested in purchasing. This data is deemed reliable but is not guaranteed to be accurate by Edina Realty, Inc., or by the MLS. Edina Realty, Inc., is not a multiple listing service (MLS), nor does it offer MLS access.
Copyright 2026 Stellar MLS as distributed by the MLS GRID. All Rights Reserved.
Sales History & Tax Summary for 6021 Boca Grande Causeway #G80
Sales History
| Date | Price | |
|---|---|---|
| Currently not available. | ||
Tax Summary
| Tax Year | Estimated Market Value | Total Tax |
|---|---|---|
| Currently not available. | ||
Data powered by ATTOM Data Solutions. Copyright© 2026. Information deemed reliable but not guaranteed.
Schools
Schools nearby 6021 Boca Grande Causeway #G80
| Schools in attendance boundaries | Grades | Distance | Rating |
|---|---|---|---|
| Loading... | |||
| Schools nearby | Grades | Distance | Rating |
|---|---|---|---|
| Loading... | |||
Data powered by ATTOM Data Solutions. Copyright© 2026. Information deemed reliable but not guaranteed.
The schools shown represent both the assigned schools and schools by distance based on local school and district attendance boundaries. Attendance boundaries change based on various factors and proximity does not guarantee enrollment eligibility. Please consult your real estate agent and/or the school district to confirm the schools this property is zoned to attend. Information is deemed reliable but not guaranteed.
SchoolDigger ® Rating
The SchoolDigger rating system is a 1-5 scale with 5 as the highest rating. SchoolDigger ranks schools based on test scores supplied by each state's Department of Education. They calculate an average standard score by normalizing and averaging each school's test scores across all tests and grades.
Coming soon properties will soon be on the market, but are not yet available for showings.