$6,500/month
6104 Champions Row Street Bradenton, FL 34210
For Rent MLS# TB8443021
4 beds 3 baths 2,623 sq ft Single Family
Details for 6104 Champions Row Street
MLS# TB8443021
Description for 6104 Champions Row Street, Bradenton, FL, 34210
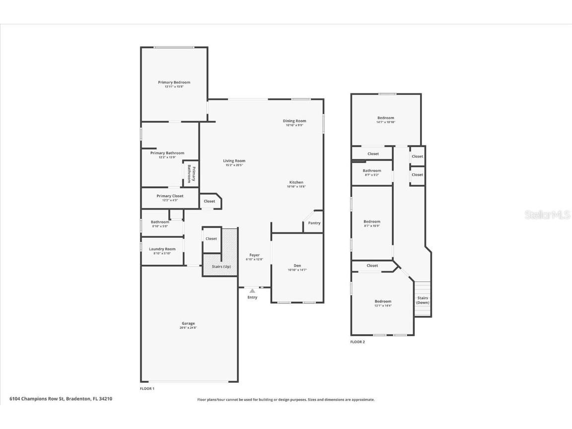
One or more photo(s) has been virtually staged. Beautiful two-story pool home located in the gated waterfront community of Legends Bay conveniently located near IMG Academy and Gulf coast beaches. This spacious home features four bedrooms plus an office and 2 1/2 baths. Large open kitchen has an abundance of cabinets with granite counter tops, pantry, and stainless steel appliances. Kitchen has a large island with seating which is open to the family room and formal dining. Master suite, which is on the first floor, features a spacious bedroom and bath with large shower, separate tub, double sinks with granite countertops and walk-in closet. Other features include large lanai and pool. Lawncare, cable and internet are included. Tenant pays for pool service and pest control. In Legends Bay you enjoy a community pool and observation pier on Sarasota Bay as well as being close to IMG Academy, IMG Golf Club and Bradenton Tennis Club as well as a short drive to the many local beaches such as Longboat Key and Anna Maria. Available furnished or unfurnished. Call for your private showing today!
Listing Information
Property Type: Rental, Single Family Residence
Status: Active
Bedrooms: 4
Bathrooms: 3
Lot Size: 0.17 Acres
Square Feet: 2,623 sq ft
Year Built: 2017
Garage: Yes
Stories: 2 Story
Date Available: 10/30/2025
Subdivision: Legends Bay
County: Manatee
School Information
Elementary: Bayshore Elementary
Middle: W.D. Sugg Middle
High: Bayshore High
Room Information
Main Floor
Primary Bedroom:
Office:
Kitchen:
Family Room:
Upper Floor
Bedroom 4:
Bedroom 3:
Bedroom 2:
Bathrooms
Full Baths: 2
1/2 Baths: 1
Additonal Room Information
Laundry: Inside, Laundry Room
Interior Features
Appliances: Built-In Oven, Cooktop, Dishwasher, Disposal, Dryer, Microwave, Refrigerator
Flooring: Luxury Vinyl,Tile
Additional Interior Features: Walk-In Closet(s), Ceiling Fan(s), Eat-In Kitchen, High Ceilings, Main Level Primary, Kitchen/Family Room Combo, Stone Counters
Utilities
Cooling: Ceiling Fan(s), Central Air
Heating: Central
Exterior / Lot Features
Attached Garage: Attached Garage
Garage Spaces: 2
Pool: In Ground, Gunite
Community Features
Community Features: Gated
Security Features: Gated Community
Security Deposit: 6500
Driving Directions
El Conquistador Pkwy to Legends Bay. Once through the gate go right on Title Row Drive. Right at stop sign to house on left.
Financial Considerations
Tenant Pays: Gas,Janitorial Service
Owner Pays: Cable TV,Grounds Care,Internet
Tax/Property ID: 6147113759
A broker reciprocity listing courtesy: MIHARA & ASSOCIATES INC.
Based on information provided by Stellar MLS as distributed by the MLS GRID. Information from the Internet Data Exchange is provided exclusively for consumers’ personal, non-commercial use, and such information may not be used for any purpose other than to identify prospective properties consumers may be interested in purchasing. This data is deemed reliable but is not guaranteed to be accurate by Edina Realty, Inc., or by the MLS. Edina Realty, Inc., is not a multiple listing service (MLS), nor does it offer MLS access.
Copyright 2025 Stellar MLS as distributed by the MLS GRID. All Rights Reserved.
Sales History & Tax Summary for 6104 Champions Row Street
Sales History
| Date | Price | Change |
|---|---|---|
| Currently not available. | ||
Tax Summary
| Tax Year | Estimated Market Value | Total Tax |
|---|---|---|
| Currently not available. | ||
Data powered by ATTOM Data Solutions. Copyright© 2025. Information deemed reliable but not guaranteed.
Schools
Schools nearby 6104 Champions Row Street
| Schools in attendance boundaries | Grades | Distance | Rating |
|---|---|---|---|
| Loading... | |||
| Schools nearby | Grades | Distance | Rating |
|---|---|---|---|
| Loading... | |||
Data powered by ATTOM Data Solutions. Copyright© 2025. Information deemed reliable but not guaranteed.
The schools shown represent both the assigned schools and schools by distance based on local school and district attendance boundaries. Attendance boundaries change based on various factors and proximity does not guarantee enrollment eligibility. Please consult your real estate agent and/or the school district to confirm the schools this property is zoned to attend. Information is deemed reliable but not guaranteed.
SchoolDigger ® Rating
The SchoolDigger rating system is a 1-5 scale with 5 as the highest rating. SchoolDigger ranks schools based on test scores supplied by each state's Department of Education. They calculate an average standard score by normalizing and averaging each school's test scores across all tests and grades.
Coming soon properties will soon be on the market, but are not yet available for showings.