$310,000
Off-Market Date: 02/28/20266572 Regency Lane Eden Prairie, MN 55344
Pending MLS# 7024236
3 beds 3 baths 1,450 sq ft Townhouse/Twinhome
Details for 6572 Regency Lane
MLS# 7024236
Description for 6572 Regency Lane, Eden Prairie, MN, 55344
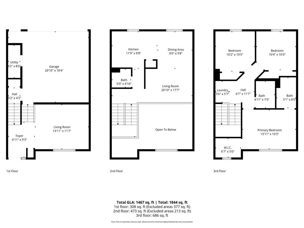
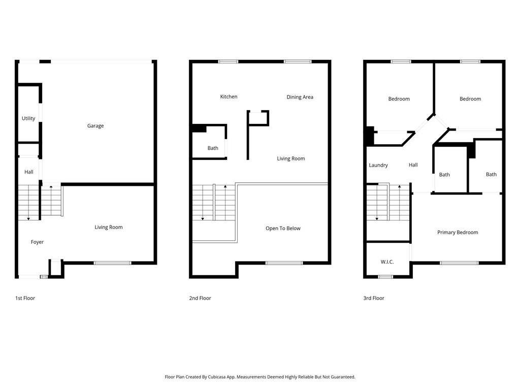
Welcome home to this impeccably maintained and updated townhome that perfectly blends style with convenience. The attractive full-brick front and private patio provide an inviting first impression, perfect for morning coffee or summer grilling. Inside, you are greeted by a bright family room featuring soaring ceilings and expansive windows that flood the space with natural light. The heart of the home is the stunning upper-level kitchen, boasting granite countertops, raised panel cabinetry, stainless steel appliances, and durable LVP wood flooring. Enjoy a seamless flow into the dining area and an open, loft-style living room. Upstairs, you’ll find three spacious bedrooms, including a luxurious primary suite with a walk-in closet and a private 3/4 bath featuring granite tops and tile floors. With laundry on the same level as the bedrooms, chores are a breeze! Plus, enjoy the community pool on those hot summer days and easy access to local shopping and walking paths.
Listing Information
Property Type: Residential, Side by Side
Status: Pending
Bedrooms: 3
Bathrooms: 3
Square Feet: 1,450 sq ft
Year Built: 1995
Foundation: 704 sq ft
Garage: Yes
Stories: 2 Stories
Property Attached: Yes
Subdivision: Cic 1605 Regency Parc
County: Hennepin
Days On Market: 8
Construction Status: Previously Owned
School Information
District: 270 - Hopkins
Room Information
Main Floor
Family Room: 14x12
Foyer: 9x7
Patio: 14x13
Upper Floor
Bedroom 1: 14x10
Bedroom 2: 10x10
Bedroom 3: 10x10
Dining Room: 10x9
Kitchen: 13x10
Living Room: 12x9
Bathrooms
Full Baths: 1
3/4 Baths: 1
1/2 Baths: 1
Additonal Room Information
Family: 2 Story/High/Vaulted Ceilings
Dining: Informal Dining Room
Bath Description: 3/4 Primary,Bathroom Ensuite,Private Primary,Upper Level 1/2 Bath,Upper Level Full Bath
Interior Features
Square Footage above: 1,450 sq ft
Appliances: Range, Refrigerator, Washer, Dishwasher, Disposal, Dryer, Microwave, Stainless Steel Appliances
Basement: Crawl Space
Additional Interior Features: Hardwood Floors, Natural Woodwork, Kitchen Window, Ceiling Fan(s), Washer/Dryer Hookup, Paneled Doors, Tile Floors, 2nd Floor Laundry, Walk-In Closet
Utilities
Water: City Water/Connected
Sewer: City Sewer/Connected
Cooling: Central
Heating: Forced Air, Natural Gas
Exterior / Lot Features
Attached Garage: Attached Garage
Garage Spaces: 2
Parking Description: Tuckunder Garage, Attached Garage, Garage Dimensions - 18x20, Garage Sq Ft - 360.0
Exterior: Vinyl, Brick/Stone
Pool: Shared
Lot Dimensions: Common
Zoning: Residential-Single Family
Additional Exterior/Lot Features: Patio, Multi-Level, Tree Coverage - Medium, Road Frontage - No Outlet/Dead End, Private, Paved Streets
Community Features
Association Amenities: Other, In-Ground Sprinkler System
HOA Dues Include: Hazard Insurance, Sanitation, Shared Amenities, Snow Removal, Lawn Care, Outside Maintenance, Professional Mgmt
Pets Allowed: Yes
Homeowners Association: Yes
Association Name: RowCal
HOA Dues: $399 / Monthly
Driving Directions
Shady Oak RD to City West PKWY North to Regency LN Left to regency LN (2nd Right) to last building on your right. the property is in the building on the left. Use guest parking straight ahead.
Financial Considerations
Covenants/Deed Restrictions: Pets - Number Limit, Pets - Dogs Allowed, Pets - Cats Allowed
Tax/Property ID: 0111622240098
Tax Amount: 3455
Tax Year: 2025
HomeStead Description: Non-Homesteaded
A broker reciprocity listing courtesy: Keller Williams Integrity NW
The data relating to real estate for sale on this web site comes in part from the Broker Reciprocity℠ Program of the Regional Multiple Listing Service of Minnesota, Inc. Real estate listings held by brokerage firms other than Edina Realty, Inc. are marked with the Broker Reciprocity℠ logo or the Broker Reciprocity℠ thumbnail and detailed information about them includes the name of the listing brokers. Edina Realty, Inc. is not a Multiple Listing Service (MLS), nor does it offer MLS access. This website is a service of Edina Realty, Inc., a broker Participant of the Regional Multiple Listing Service of Minnesota, Inc. IDX information is provided exclusively for consumers personal, non-commercial use and may not be used for any purpose other than to identify prospective properties consumers may be interested in purchasing. Open House information is subject to change without notice. Information deemed reliable but not guaranteed.
Copyright 2026 Regional Multiple Listing Service of Minnesota, Inc. All Rights Reserved.
Sales History & Tax Summary for 6572 Regency Lane
Sales History
| Date | Price | |
|---|---|---|
| Currently not available. | ||
Tax Summary
| Tax Year | Estimated Market Value | Total Tax |
|---|---|---|
| Currently not available. | ||
Data powered by ATTOM Data Solutions. Copyright© 2026. Information deemed reliable but not guaranteed.
Schools
Schools nearby 6572 Regency Lane
| Schools in attendance boundaries | Grades | Distance | Rating |
|---|---|---|---|
| Loading... | |||
| Schools nearby | Grades | Distance | Rating |
|---|---|---|---|
| Loading... | |||
Data powered by ATTOM Data Solutions. Copyright© 2026. Information deemed reliable but not guaranteed.
The schools shown represent both the assigned schools and schools by distance based on local school and district attendance boundaries. Attendance boundaries change based on various factors and proximity does not guarantee enrollment eligibility. Please consult your real estate agent and/or the school district to confirm the schools this property is zoned to attend. Information is deemed reliable but not guaranteed.
SchoolDigger ® Rating
The SchoolDigger rating system is a 1-5 scale with 5 as the highest rating. SchoolDigger ranks schools based on test scores supplied by each state's Department of Education. They calculate an average standard score by normalizing and averaging each school's test scores across all tests and grades.
Coming soon properties will soon be on the market, but are not yet available for showings.