$1,650/month
6754 Lake Rochester Lane Gibsonton, FL 33534
For Rent MLS# TB8443178
2 beds 3 baths 1,152 sq ft Townhouse/Twinhome
Details for 6754 Lake Rochester Lane
MLS# TB8443178
Description for 6754 Lake Rochester Lane, Gibsonton, FL, 33534
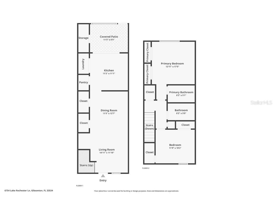
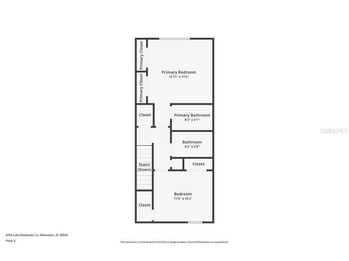
Charming 2Beds/ 2.5Baths Townhome with Amazing Amenities! Charming 2Beds/ 2Baths townhome with amazing amenities! Charming well laid out two bedrooms, two and a half bath, minutes from 75, 301, shopping and dining. Nice open floor plan on the first floor, leads to the eat-in Kitchen, then to the screened Lanai with additional storage. You will enjoy the spacious bedrooms upstairs. Beautifully kept gated community with a large community pool. Water included! Make this your next home! If you decide to apply for one of our properties: Screening includes credit/background check, income verification of 2.5 to 3 times the monthly rent and rental history verification. We encourage applicants with credit scores above 600 to apply, as meeting this criteria will help streamline the application process. APPLICANT CHARGES: Application Fee: $75 each adult, 18 years of age and older (non-refundable). Lease Initiation Admin Fee: $150.00 after approval and upon signing. Security Deposit: Equal to one month’s rent on approved credit. Renters Insurance is REQUIRED. $25 each pet application fee for pet verification (non-refundable). Current vaccination records will be required. ESA and service animals are FREE with verified documentation. Pet Fee if applicable (non-refundable) $350 each pet. All Rent Solutions residents are enrolled in the Resident Benefits Package (RBP) for $49.95/month which includes liability insurance, credit building to help boost the resident’s credit score with timely rent payments, HVAC air filter delivery (for applicable properties), our best-in-class resident rewards program, and much more! More details upon application.
Listing Information
Property Type: Rental, Townhouse
Status: Active
Bedrooms: 2
Bathrooms: 3
Lot Size: 0.02 Acres
Square Feet: 1,152 sq ft
Year Built: 2004
Stories: 1 Story
Date Available: 10/29/2025
Subdivision: Kings Lake Townhomes
County: Hillsborough
School Information
Elementary: Corr-Hb
Middle: Eisenhower-Hb
High: East Bay-Hb
Room Information
Bathrooms
Full Baths: 2
1/2 Baths: 1
Additonal Room Information
Laundry: Laundry Closet
Interior Features
Appliances: Ice Maker, Refrigerator, Washer, Dishwasher, Disposal, Dryer, Microwave
Doors/Windows: Window Treatments
Additional Interior Features: Walk-In Closet(s), Eat-In Kitchen, Ceiling Fan(s), Other, Window Treatments
Utilities
Cooling: Ceiling Fan(s), Central Air
Heating: Central, Electric
Exterior / Lot Features
Pool: Community
Additional Exterior/Lot Features: Patio, Screened
Community Features
Community Features: Pool, Playground, Gated
Security Features: Gated Community
Security Deposit: 1650
Driving Directions
From S Tamiami Trail/US Hwy 41 S, take Big Bend Rd, Turn left onto Kings Crossing Dr, Turn right to stay on Kings Crossing Dr, Turn left onto Lake Rochester Ln. Location o right
Financial Considerations
Owner Pays: Grounds Care,Other,Sewer,Trash Collection,Water
Tax/Property ID: U-11-31-19-67K-000026-00003.0
A broker reciprocity listing courtesy: RENT SOLUTIONS
Based on information provided by Stellar MLS as distributed by the MLS GRID. Information from the Internet Data Exchange is provided exclusively for consumers’ personal, non-commercial use, and such information may not be used for any purpose other than to identify prospective properties consumers may be interested in purchasing. This data is deemed reliable but is not guaranteed to be accurate by Edina Realty, Inc., or by the MLS. Edina Realty, Inc., is not a multiple listing service (MLS), nor does it offer MLS access.
Copyright 2025 Stellar MLS as distributed by the MLS GRID. All Rights Reserved.
Sales History & Tax Summary for 6754 Lake Rochester Lane
Sales History
| Date | Price | Change |
|---|---|---|
| Currently not available. | ||
Tax Summary
| Tax Year | Estimated Market Value | Total Tax |
|---|---|---|
| Currently not available. | ||
Data powered by ATTOM Data Solutions. Copyright© 2025. Information deemed reliable but not guaranteed.
Schools
Schools nearby 6754 Lake Rochester Lane
| Schools in attendance boundaries | Grades | Distance | Rating |
|---|---|---|---|
| Loading... | |||
| Schools nearby | Grades | Distance | Rating |
|---|---|---|---|
| Loading... | |||
Data powered by ATTOM Data Solutions. Copyright© 2025. Information deemed reliable but not guaranteed.
The schools shown represent both the assigned schools and schools by distance based on local school and district attendance boundaries. Attendance boundaries change based on various factors and proximity does not guarantee enrollment eligibility. Please consult your real estate agent and/or the school district to confirm the schools this property is zoned to attend. Information is deemed reliable but not guaranteed.
SchoolDigger ® Rating
The SchoolDigger rating system is a 1-5 scale with 5 as the highest rating. SchoolDigger ranks schools based on test scores supplied by each state's Department of Education. They calculate an average standard score by normalizing and averaging each school's test scores across all tests and grades.
Coming soon properties will soon be on the market, but are not yet available for showings.