$1,450/month
7744 St Andrews Boulevard #1 Weeki Wachee, FL 34613
For Rent MLS# W7882382
2 beds 2 baths 1,142 sq ft Condo
Details for 7744 St Andrews Boulevard #1
MLS# W7882382
Description for 7744 St Andrews Boulevard #1, Weeki Wachee, FL, 34613
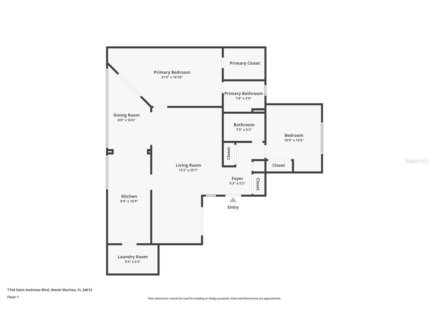
Welcome to this well-maintained 2-bedroom, 2-bath upstairs rental offering 1,142 square feet of comfortable living space in desirable Weeki Wachee, Florida. The thoughtfully designed split-bedroom floor plan provides added privacy, making it ideal for roommates or a home office setup. The eat-in kitchen offers ample space for casual dining and everyday living, while the open living area is filled with natural light, creating a warm and inviting atmosphere. Both bedrooms are generously sized, each with convenient access to a full bathroom. As an upstairs unit, the home enjoys added privacy and a quiet living experience. Centrally located near shopping, dining, Weeki Wachee Springs, and major roadways, this rental offers both comfort and convenience in a sought-after location. Schedule your private showing today.
Listing Information
Property Type: Rental, Condominium
Status: Active
Bedrooms: 2
Bathrooms: 2
Lot Size: 0.02 Acres
Square Feet: 1,142 sq ft
Year Built: 1984
Stories: 1 Story
Date Available: 1/23/2026
Subdivision: Fairway At The Heather
County: Hernando
Room Information
Main Floor
Primary Bedroom: 10x21
Kitchen: 16x8
Living Room: x25
Bathrooms
Full Baths: 2
Additonal Room Information
Laundry: Inside
Interior Features
Appliances: Refrigerator, Cooktop
Additional Interior Features: Ceiling Fan(s), Walk-In Closet(s)
Utilities
Cooling: Central Air, Ceiling Fan(s)
Heating: Electric, Central
Exterior / Lot Features
Pool: Community
Community Features
Community Features: Pool, Golf
Security Deposit: 4350
Driving Directions
Head toward Woodland Waters Blvd, Turn right onto St Andrews Blvd, Destination will be on the right.
Financial Considerations
Owner Pays: Cable TV,Grounds Care,Pool Maintenance,Trash Collection
Tax/Property ID: R26-222-17-9010-0001-00C0
A broker reciprocity listing courtesy: HORIZON PALM REALTY GROUP
Based on information provided by Stellar MLS as distributed by the MLS GRID. Information from the Internet Data Exchange is provided exclusively for consumers’ personal, non-commercial use, and such information may not be used for any purpose other than to identify prospective properties consumers may be interested in purchasing. This data is deemed reliable but is not guaranteed to be accurate by Edina Realty, Inc., or by the MLS. Edina Realty, Inc., is not a multiple listing service (MLS), nor does it offer MLS access.
Copyright 2026 Stellar MLS as distributed by the MLS GRID. All Rights Reserved.
Sales History & Tax Summary for 7744 St Andrews Boulevard #1
Sales History
| Date | Price | |
|---|---|---|
| Currently not available. | ||
Tax Summary
| Tax Year | Estimated Market Value | Total Tax |
|---|---|---|
| Currently not available. | ||
Data powered by ATTOM Data Solutions. Copyright© 2026. Information deemed reliable but not guaranteed.
Schools
Schools nearby 7744 St Andrews Boulevard #1
| Schools in attendance boundaries | Grades | Distance | Rating |
|---|---|---|---|
| Loading... | |||
| Schools nearby | Grades | Distance | Rating |
|---|---|---|---|
| Loading... | |||
Data powered by ATTOM Data Solutions. Copyright© 2026. Information deemed reliable but not guaranteed.
The schools shown represent both the assigned schools and schools by distance based on local school and district attendance boundaries. Attendance boundaries change based on various factors and proximity does not guarantee enrollment eligibility. Please consult your real estate agent and/or the school district to confirm the schools this property is zoned to attend. Information is deemed reliable but not guaranteed.
SchoolDigger ® Rating
The SchoolDigger rating system is a 1-5 scale with 5 as the highest rating. SchoolDigger ranks schools based on test scores supplied by each state's Department of Education. They calculate an average standard score by normalizing and averaging each school's test scores across all tests and grades.
Coming soon properties will soon be on the market, but are not yet available for showings.