$3,350/month
8689 Deerwood Lane N Maple Grove, MN 55369
For Rent MLS# 6823754
3 beds 3 baths 1,770 sq ft Single Family
Details for 8689 Deerwood Lane N
MLS# 6823754
Description for 8689 Deerwood Lane N, Maple Grove, MN, 55369
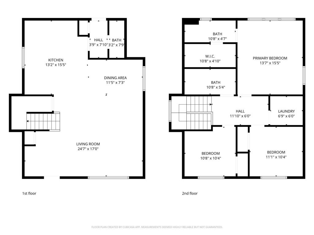
The beautiful Oak floor plan is a two-story home designed for cooking, hosting, and easy living. This spacious 3 bedroom, 3 bathroom layout features an impressive kitchen with abundant storage, quartz countertops, soft-close cabinetry, and a gas range. Wood beams add warmth and character to the open-concept main level.An oversized two-car garage provides extra room for storage so everything has its place.Upstairs, the primary suite offers bright lookout windows, double sinks, and a large walk-in closet. A dedicated laundry room and two additional bedrooms complete the upper level, providing convenience and a nice retreat from the main-level's entertaining areas. This floor plan is perfect for anyone who loves to cook, entertain, and keep life organized. It's located in a low-maintenance community that handles lawn care and snow removal. Residents enjoy exceptional amenities: fitness center, outdoor pool, putting green, on-site dog park, community center, and organized social events.Close to shopping, dining, parks, and everything Maple Grove has to offer. A rare opportunity for effortless, upscale living.
Listing Information
Property Type: Rental, Single Family
Status: Active
Bedrooms: 3
Bathrooms: 3
Lot Size: 0.10 Acres
Square Feet: 1,770 sq ft
Year Built: 2019
Foundation: 825 sq ft
Garage: Yes
Stories: 2 Stories
Date Available: 12/2/2025
Subdivision: Mills Creek Second Add
Background Check: Yes
County: Hennepin
Days On Market: 136
Construction Status: Previously Owned
School Information
District: 279 - Osseo
Room Information
Main Floor
Dining Room: 11'x12'
Kitchen: 19'x13'
Living Room: 14'x25'
Upper Floor
Bedroom 1: 14'x15'8
Bedroom 2: 11'x10'6
Bedroom 3: 11'x10'6
Laundry: 7'x6'
Walk-In Closet: 5'x10'
Bathrooms
Full Baths: 1
3/4 Baths: 1
1/2 Baths: 1
Additonal Room Information
Family: Main Level
Dining: Eat In Kitchen,Living/Dining Room
Laundry: Laundry Room, Upper Level
Bath Description: Double Sink,3/4 Primary,Main Floor 1/2 Bath,Private Primary,Upper Level Full Bath
Interior Features
Square Footage above: 1,770 sq ft
Appliances: Stainless Steel Appliances, Washer, Range, Refrigerator, Freezer, Dryer, Microwave, Dishwasher, Disposal
Additional Interior Features: Ceiling Fan(s), Walk-In Closet, Ethernet Wired, Kitchen Center Island, Paneled Doors, Kitchen Window, Primary Bdr Suite, 3 BR on One Level, 2nd Floor Laundry
Utilities
Water: City Water/Connected
Sewer: City Sewer/Connected
Cooling: Central
Heating: Natural Gas, Forced Air
Exterior / Lot Features
Attached Garage: Attached Garage
Garage Spaces: 2
Parking Description: Driveway - Asphalt, Attached Garage, Guest Parking, Garage Sq Ft - 446.0
Exterior: Vinyl
Roof: Age 8 Years or Less
Pool: Shared, Outdoor
Lot Dimensions: 46X99X46X98
Zoning: Residential-Single Family
Additional Exterior/Lot Features: Porch, Road Frontage - City
Community Features
Community Features: Exercise Room, Business Center, Community Room, Club House, Amusement/Party Room
HOA Dues Include: Shared Amenities
Pets Allowed: Yes
Homeowners Association: Yes
HOA Dues: $125 / Monthly
Security Deposit: 1000
Driving Directions
From 94 and Hemlock, take Hemlock Ln N, which becomes Zachary Ln N; Left on Weaver Lake Rd; Right on Forestview Ln N; Right on Deerwood Ln N; Home is on the Right.
Financial Considerations
Aplication Fee: 50
Min Lease Months: 2
Other Deposit Fees: Admin = $200
Covenants/Deed Restrictions: Other Covenants, Pets - Breed Restriction, Pets - Number Limit, Pets - Dogs Allowed, Pets - Cats Allowed
Tenant Pays: All Utilities,Association Fee
Owner Pays: Common Area Maintenance,Exterior Maintenance,Grounds Care,HVAC Maintenance,Lawn,Management,Roof Maintenance,Snow,Taxes
Tax/Property ID: 1411922430193
HomeStead Description: Non-Homesteaded
A broker reciprocity listing courtesy: Exit Northstar Realty
The data relating to real estate for sale on this web site comes in part from the Broker Reciprocity℠ Program of the Regional Multiple Listing Service of Minnesota, Inc. Real estate listings held by brokerage firms other than Edina Realty, Inc. are marked with the Broker Reciprocity℠ logo or the Broker Reciprocity℠ thumbnail and detailed information about them includes the name of the listing brokers. Edina Realty, Inc. is not a Multiple Listing Service (MLS), nor does it offer MLS access. This website is a service of Edina Realty, Inc., a broker Participant of the Regional Multiple Listing Service of Minnesota, Inc. IDX information is provided exclusively for consumers personal, non-commercial use and may not be used for any purpose other than to identify prospective properties consumers may be interested in purchasing. Open House information is subject to change without notice. Information deemed reliable but not guaranteed.
Copyright 2026 Regional Multiple Listing Service of Minnesota, Inc. All Rights Reserved.
Sales History & Tax Summary for 8689 Deerwood Lane N
Sales History
| Date | Price | |
|---|---|---|
| Currently not available. | ||
Tax Summary
| Tax Year | Estimated Market Value | Total Tax |
|---|---|---|
| Currently not available. | ||
Data powered by ATTOM Data Solutions. Copyright© 2026. Information deemed reliable but not guaranteed.
Schools
Schools nearby 8689 Deerwood Lane N
| Schools in attendance boundaries | Grades | Distance | Rating |
|---|---|---|---|
| Loading... | |||
| Schools nearby | Grades | Distance | Rating |
|---|---|---|---|
| Loading... | |||
Data powered by ATTOM Data Solutions. Copyright© 2026. Information deemed reliable but not guaranteed.
The schools shown represent both the assigned schools and schools by distance based on local school and district attendance boundaries. Attendance boundaries change based on various factors and proximity does not guarantee enrollment eligibility. Please consult your real estate agent and/or the school district to confirm the schools this property is zoned to attend. Information is deemed reliable but not guaranteed.
SchoolDigger ® Rating
The SchoolDigger rating system is a 1-5 scale with 5 as the highest rating. SchoolDigger ranks schools based on test scores supplied by each state's Department of Education. They calculate an average standard score by normalizing and averaging each school's test scores across all tests and grades.
Coming soon properties will soon be on the market, but are not yet available for showings.