$26,400/month
900 Hillcrest Avenue #A Lake Placid, FL 33852
For Rent MLS# L4954410
1,722 sq ft Commercial
Details for 900 Hillcrest Avenue #A
MLS# L4954410
Description for 900 Hillcrest Avenue #A, Lake Placid, FL, 33852
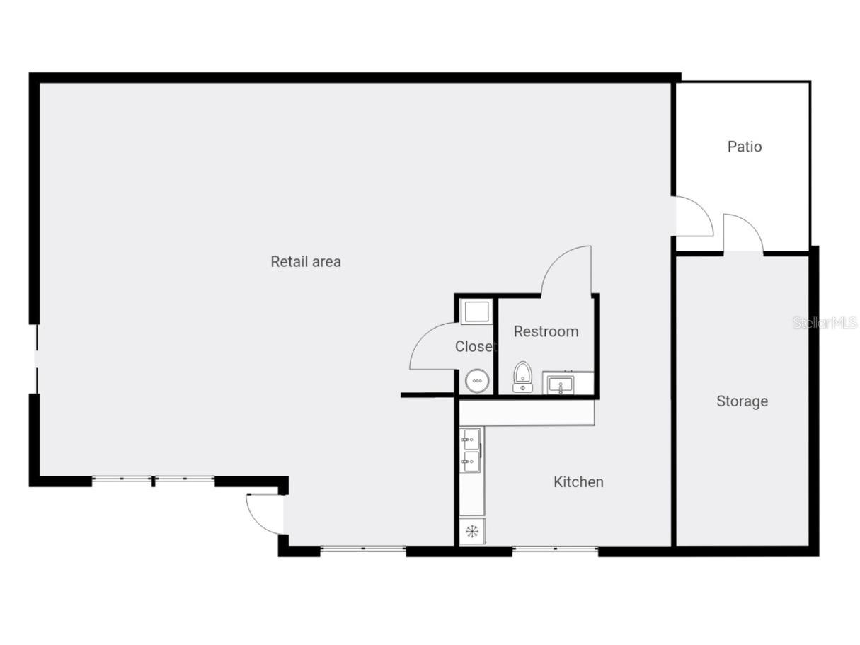
Prime Commercial Space for Growing Businesses – Central Lake Placid Location Take your business to the next level with this pristine and spacious 2,169 RSF commercial unit, ideally located directly across from the Lake Placid Post Office. Zoned C2 (see attached zoning code), this versatile space is perfect for a variety of business uses. Now available at just $12.17/sf plus electric – a competitive opportunity in a high-visibility area. Key Features: Recently updated with modern flooring, a refreshed kitchenette, and a clean, professional restroom Includes a 230 SF secure storage room for inventory or equipment 130 SF covered patio adds functional outdoor space for customers or team use Utilities included: water, sewer, and trash removal Move-in ready for retail, office, or service-based businesses Tenant responsible for electricity and liability insurance. Bring your vision and grow in a location designed to support your success.
Listing Information
Property Type: Commercial, Retail
Status: Active
Lot Size: 0.24 Acres
Square Feet: 1,722 sq ft
Year Built: 2005
Stories: 1 Story
Construction: Block,Concrete,Stucco
Construction Display: New Construction
Subdivision: Hillcrest Add
Foundation: Slab
County: Highlands
Construction Status: New Construction
Interior Features
Appliances: Refrigerator
Additional Interior Features: Storage
Utilities
Water: Public
Sewer: Public Sewer
Other Utilities: Electricity Available,Water Connected
Cooling: Central Air
Heating: Central
Exterior / Lot Features
Roof: Metal
Lot Dimensions: 95x110
Driving Directions
From US 27 and Hammock Rd in Sebring, Travel SOUTH on US 27 to RIGHT on Heartland Blvd to LEFT on Hillcrest to property on the RIGHT
Financial Considerations
Tenant Pays: Electricity,Insurance
Owner Pays: Sewer,Trash Collection,Water
Tax/Property ID: P-31-36-30-050-0020-0010
Tax Amount: 4501.39
Tax Year: 2024
A broker reciprocity listing courtesy: ADVANTAGE REALTY 1
Based on information provided by Stellar MLS as distributed by the MLS GRID. Information from the Internet Data Exchange is provided exclusively for consumers’ personal, non-commercial use, and such information may not be used for any purpose other than to identify prospective properties consumers may be interested in purchasing. This data is deemed reliable but is not guaranteed to be accurate by Edina Realty, Inc., or by the MLS. Edina Realty, Inc., is not a multiple listing service (MLS), nor does it offer MLS access.
Copyright 2026 Stellar MLS as distributed by the MLS GRID. All Rights Reserved.
Sales History & Tax Summary for 900 Hillcrest Avenue #A
Sales History
| Date | Price | |
|---|---|---|
| Currently not available. | ||
Tax Summary
| Tax Year | Estimated Market Value | Total Tax |
|---|---|---|
| Currently not available. | ||
Data powered by ATTOM Data Solutions. Copyright© 2026. Information deemed reliable but not guaranteed.
Schools
Schools nearby 900 Hillcrest Avenue #A
| Schools in attendance boundaries | Grades | Distance | Rating |
|---|---|---|---|
| Loading... | |||
| Schools nearby | Grades | Distance | Rating |
|---|---|---|---|
| Loading... | |||
Data powered by ATTOM Data Solutions. Copyright© 2026. Information deemed reliable but not guaranteed.
The schools shown represent both the assigned schools and schools by distance based on local school and district attendance boundaries. Attendance boundaries change based on various factors and proximity does not guarantee enrollment eligibility. Please consult your real estate agent and/or the school district to confirm the schools this property is zoned to attend. Information is deemed reliable but not guaranteed.
SchoolDigger ® Rating
The SchoolDigger rating system is a 1-5 scale with 5 as the highest rating. SchoolDigger ranks schools based on test scores supplied by each state's Department of Education. They calculate an average standard score by normalizing and averaging each school's test scores across all tests and grades.
Coming soon properties will soon be on the market, but are not yet available for showings.