925 16th Avenue N Saint Petersburg, FL 33704
For Sale MLS# TB8448105
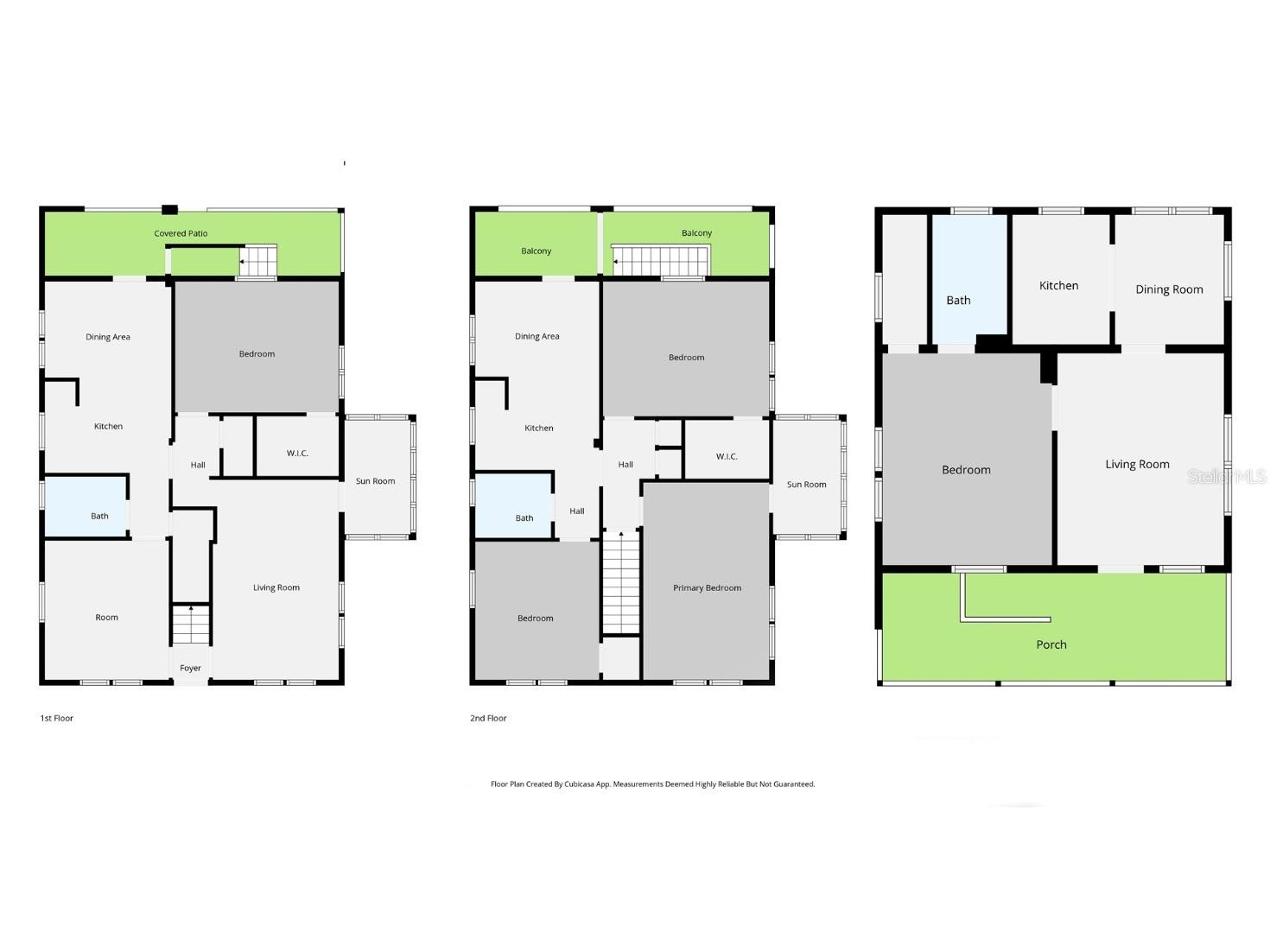
5 beds 3 baths 2,838 sq ft Multi-family
Details for 925 16th Avenue N
MLS# TB8448105
Description for 925 16th Avenue N, Saint Petersburg, FL, 33704
Located in the highly desirable Euclid St. Paul’s neighborhood of St. Petersburg, this recently restored triplex perfectly blends historic charm with modern updates. The property features a versatile unit mix, including two spacious 2-bedroom, 1-bathroom units (each approximately 1,131 sq. ft.) offering large rear porches, sunrooms, dining areas, and separate laundry hookups, as well as one 1-bedroom, 1-bathroom garage apartment (576 sq. ft.) with its own laundry hookup, covered porch, and a two-car garage below. The front building is constructed entirely of concrete block—including both floors and the floor system between—while the detached garage apartment is wood frame construction. Each unit enjoys abundant natural light, spacious layouts, and a tasteful combination of modern finishes and original period details. Property features include separate electric meters for each unit and one shared water/sewer/trash meter, ample parking, and inviting common spaces for tenants. Situated on a charming brick street just steps from Crescent Lake Park and only minutes to downtown St. Petersburg, this property offers the perfect opportunity for investors or those looking to live in one unit and rent out the others. A truly turnkey, income-producing property in one of St. Pete’s most sought-after neighborhoods.
Listing Information
Property Type: Residential, Triplex
Status: Active
Bedrooms: 5
Bathrooms: 3
Lot Size: 0.15 Acres
Square Feet: 2,838 sq ft
Year Built: 1925
Garage: Yes
Stories: 1 Story
Construction: Block,Wood Frame
Construction Display: New Construction
Subdivision: Hilcrest
Foundation: Slab
Number Of Units Total: 3
County: Pinellas
Construction Status: New Construction
Additonal Room Information
Laundry: Outside
Interior Features
Appliances: Range, Refrigerator, Electric Water Heater
Flooring: Luxury Vinyl
Doors/Windows: Window Treatments
Additional Interior Features: Walk-In Closet(s), Eat-In Kitchen, Window Treatments, Solid Surface Counters
Utilities
Water: Public
Sewer: Public Sewer
Other Utilities: Electricity Connected,Sewer Connected,Water Connected
Cooling: Central Air, Ductless
Heating: Electric
Exterior / Lot Features
Garage Spaces: 2
Parking Description: Guest, Garage Faces Rear, Open
Roof: Shingle
Lot View: City
Lot Dimensions: 50x127
Additional Exterior/Lot Features: Sprinkler/Irrigation, Storage, Covered, Rear Porch, Flat, Level, City Lot, Oversized Lot
Out Buildings: Garage Apartment
Community Features
Community Features: Sidewalks
Unit Information
Unit 1 Units Total: 1
Unit 1 Actual Rent: 2000
Unit 1 Baths Total: 1
Unit 1 Beds Total: 1
Unit 2 Units Total: 2
Unit 2 Actual Rent: 2950
Unit 2 Baths Total: 1
Unit 2 Beds Total: 2
Driving Directions
16th Ave N to address.
Financial Considerations
Terms: Cash,Conventional
Tenant Pays: Electricity
Gross Income: 94800
Tax/Property ID: 13-31-16-39672-000-0170
Tax Amount: 9018.1
Tax Year: 2024
A broker reciprocity listing courtesy: KELLER WILLIAMS ST PETE REALTY
Based on information provided by Stellar MLS as distributed by the MLS GRID. Information from the Internet Data Exchange is provided exclusively for consumers’ personal, non-commercial use, and such information may not be used for any purpose other than to identify prospective properties consumers may be interested in purchasing. This data is deemed reliable but is not guaranteed to be accurate by Edina Realty, Inc., or by the MLS. Edina Realty, Inc., is not a multiple listing service (MLS), nor does it offer MLS access.
Copyright 2026 Stellar MLS as distributed by the MLS GRID. All Rights Reserved.
Payment Calculator
Interest rate and annual percentage rate (APR) are based on current market conditions, are for informational purposes only, are subject to change without notice and may be subject to pricing add-ons related to property type, loan amount, loan-to-value, credit score and other variables. Estimated closing costs used in the APR calculation are assumed to be paid by the borrower at closing. If the closing costs are financed, the loan, APR and payment amounts will be higher. If the down payment is less than 20%, mortgage insurance may be required and could increase the monthly payment and APR. Contact us for details. Additional loan programs may be available. Accuracy is not guaranteed, and all products may not be available in all borrower's geographical areas and are based on their individual situation. This is not a credit decision or a commitment to lend.
Sales History & Tax Summary for 925 16th Avenue N
Sales History
| Date | Price | |
|---|---|---|
| Currently not available. | ||
Tax Summary
| Tax Year | Estimated Market Value | Total Tax |
|---|---|---|
| Currently not available. | ||
Data powered by ATTOM Data Solutions. Copyright© 2026. Information deemed reliable but not guaranteed.
Schools
Schools nearby 925 16th Avenue N
| Schools in attendance boundaries | Grades | Distance | Rating |
|---|---|---|---|
| Loading... | |||
| Schools nearby | Grades | Distance | Rating |
|---|---|---|---|
| Loading... | |||
Data powered by ATTOM Data Solutions. Copyright© 2026. Information deemed reliable but not guaranteed.
The schools shown represent both the assigned schools and schools by distance based on local school and district attendance boundaries. Attendance boundaries change based on various factors and proximity does not guarantee enrollment eligibility. Please consult your real estate agent and/or the school district to confirm the schools this property is zoned to attend. Information is deemed reliable but not guaranteed.
SchoolDigger ® Rating
The SchoolDigger rating system is a 1-5 scale with 5 as the highest rating. SchoolDigger ranks schools based on test scores supplied by each state's Department of Education. They calculate an average standard score by normalizing and averaging each school's test scores across all tests and grades.
Coming soon properties will soon be on the market, but are not yet available for showings.