$1,500/month
9518 Newdale Way #102 Riverview, FL 33578
For Rent MLS# TB8420433
3 beds 2 baths 1,151 sq ft Condo
Details for 9518 Newdale Way #102
MLS# TB8420433
Description for 9518 Newdale Way #102, Riverview, FL, 33578
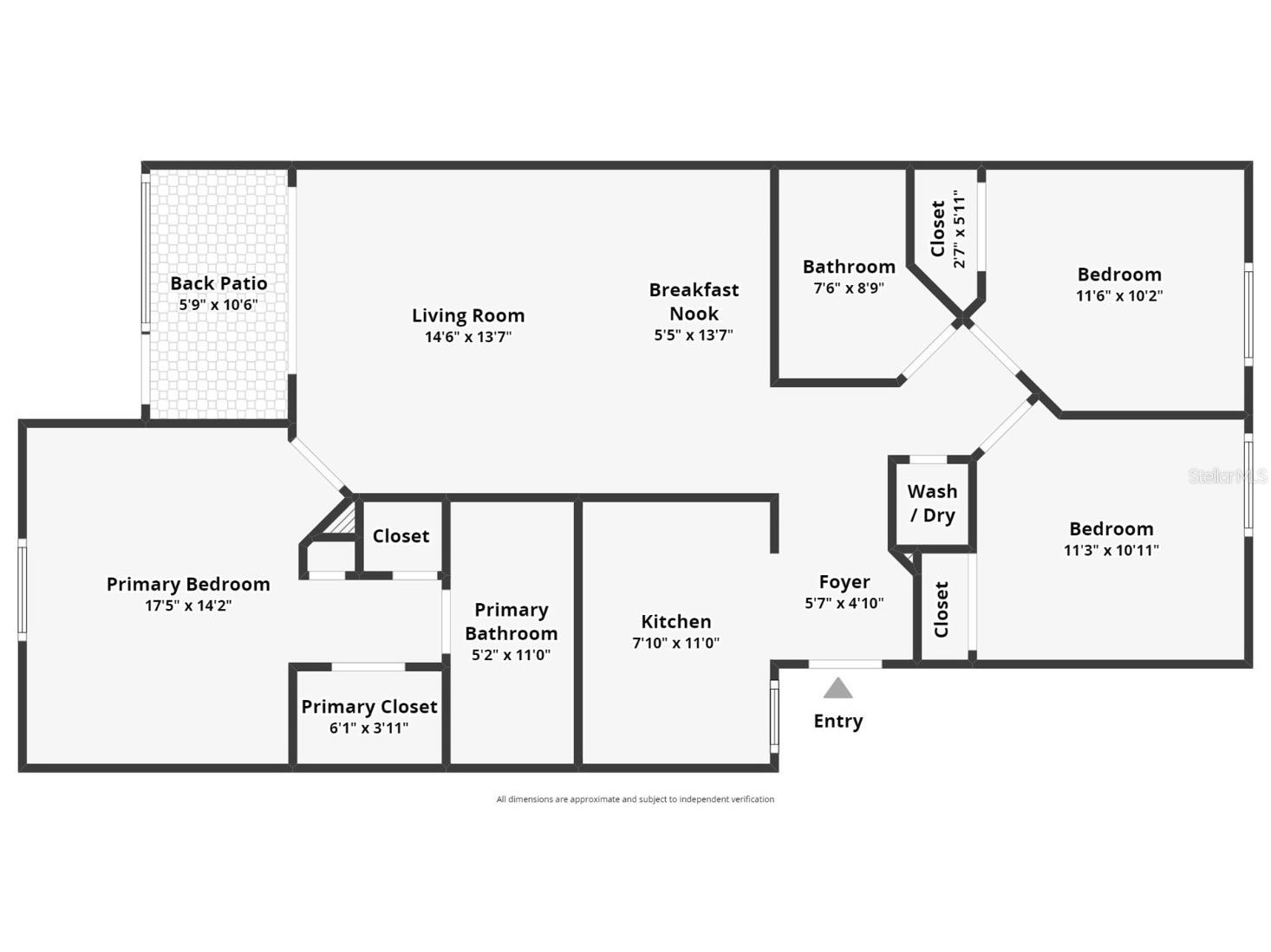
The Villages of Bloomingdale is a private neighborhood with individually gated villages, ideally located just 1/4 mile west of Hwy 301 on Progress Boulevard and minutes from Interstate I-75 and the Leroy Selmon Crosstown Expressway, making travel to business, shopping, and entertainment convenient. This is a popular gated community with a desirable floor plan! This condo offers 3 bedrooms, 2 bathrooms, and nearly 1,200 square feet of living space. Tile flooring is in the kitchen and bathrooms only. The kitchen is open to the living room and dining area, featuring a breakfast bar for additional seating. Other features of this condo include an inside utility room with stackable washer/dryer connections, a split-bedroom layout, and a screened balcony. Enjoy the amenities as often as you like: a playground, swimming in the community pool, working out in the fitness center, or using the clubhouse for extra space when entertaining. Convenient location too! Easy access to major roads, shopping, dining, and entertainment! If you decide to apply for one of our properties: Screening includes credit/background check, income verification of 2.5 to 3 times the monthly rent and rental history verification. We encourage applicants with credit scores above 600 to apply, as meeting this criteria will help streamline the application process. APPLICANT CHARGES: Application Fees: $75 each adult, 18 years of age and older (non-refundable). $25 each pet application fee for pet verification (non-refundable). Current vaccination records will be required. ESA and service animals are FREE with verified documentation. Lease Initiation Admin Fee: $150.00 after approval and upon signing. Security Deposit: Equal to one month’s rent. Pet Fee if applicable (non-refundable) $350 each pet.
Listing Information
Property Type: Rental, Condominium
Status: Active
Bedrooms: 3
Bathrooms: 2
Lot Size: 0.02 Acres
Square Feet: 1,151 sq ft
Year Built: 2006
Stories: 2 Story
Date Available: 8/22/2025
Subdivision: Villages Of Bloomingdale Condo
County: Hillsborough
School Information
Elementary: Ippolito-Hb
Middle: Giunta Middle-Hb
High: Spoto High-Hb
Room Information
Bathrooms
Full Baths: 2
Additonal Room Information
Laundry: Washer Hookup, Electric Dryer Hookup
Interior Features
Appliances: Dishwasher, Disposal, Microwave, Range, Refrigerator
Doors/Windows: Blinds, Window Treatments
Additional Interior Features: Walk-In Closet(s), Ceiling Fan(s), Other, Window Treatments
Utilities
Cooling: Ceiling Fan(s), Central Air
Heating: Electric, Central
Exterior / Lot Features
Parking Description: Assigned, Off Street
Pool: Community
Additional Exterior/Lot Features: Patio, Screened
Community Features
Community Features: Pool, Playground, Clubhouse, Gated
Security Features: Gated Community, Gated with Guard
Security Deposit: 1500
Driving Directions
Driving directions from Brandon Mall 459 Brandon Town Center Dr, Brandon, FL 33511 Follow Brandon Town Center Dr to E State Rd 60 W 2 min (0.3 mi) Continue to Progress Blvd 7 min (4.9 mi) Continue on Progress Blvd. Take Valleydale Dr to Newdale Way in Riverview 2 min (0.7 mi) 9518 Newdale Way Riverview, FL 33578
Financial Considerations
Owner Pays: Grounds Care,Other,Pool Maintenance,Sewer,Trash Collection
Tax/Property ID: U-07-30-20-95D-000000-72104-0
A broker reciprocity listing courtesy: RENT SOLUTIONS
Based on information provided by Stellar MLS as distributed by the MLS GRID. Information from the Internet Data Exchange is provided exclusively for consumers’ personal, non-commercial use, and such information may not be used for any purpose other than to identify prospective properties consumers may be interested in purchasing. This data is deemed reliable but is not guaranteed to be accurate by Edina Realty, Inc., or by the MLS. Edina Realty, Inc., is not a multiple listing service (MLS), nor does it offer MLS access.
Copyright 2025 Stellar MLS as distributed by the MLS GRID. All Rights Reserved.
Sales History & Tax Summary for 9518 Newdale Way #102
Sales History
| Date | Price | Change |
|---|---|---|
| Currently not available. | ||
Tax Summary
| Tax Year | Estimated Market Value | Total Tax |
|---|---|---|
| Currently not available. | ||
Data powered by ATTOM Data Solutions. Copyright© 2025. Information deemed reliable but not guaranteed.
Schools
Schools nearby 9518 Newdale Way #102
| Schools in attendance boundaries | Grades | Distance | Rating |
|---|---|---|---|
| Loading... | |||
| Schools nearby | Grades | Distance | Rating |
|---|---|---|---|
| Loading... | |||
Data powered by ATTOM Data Solutions. Copyright© 2025. Information deemed reliable but not guaranteed.
The schools shown represent both the assigned schools and schools by distance based on local school and district attendance boundaries. Attendance boundaries change based on various factors and proximity does not guarantee enrollment eligibility. Please consult your real estate agent and/or the school district to confirm the schools this property is zoned to attend. Information is deemed reliable but not guaranteed.
SchoolDigger ® Rating
The SchoolDigger rating system is a 1-5 scale with 5 as the highest rating. SchoolDigger ranks schools based on test scores supplied by each state's Department of Education. They calculate an average standard score by normalizing and averaging each school's test scores across all tests and grades.
Coming soon properties will soon be on the market, but are not yet available for showings.