$2,095/month
9870 Tivoli Villa Drive Orlando, FL 32829
For Rent MLS# O6372025
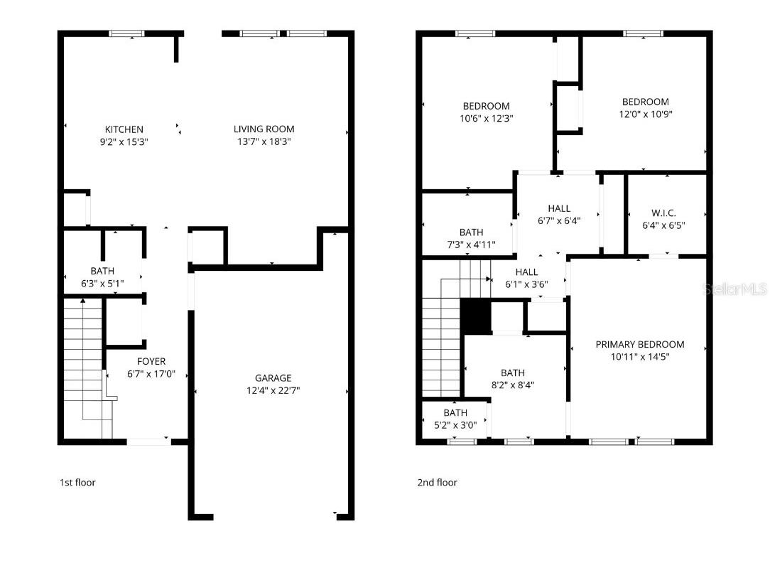
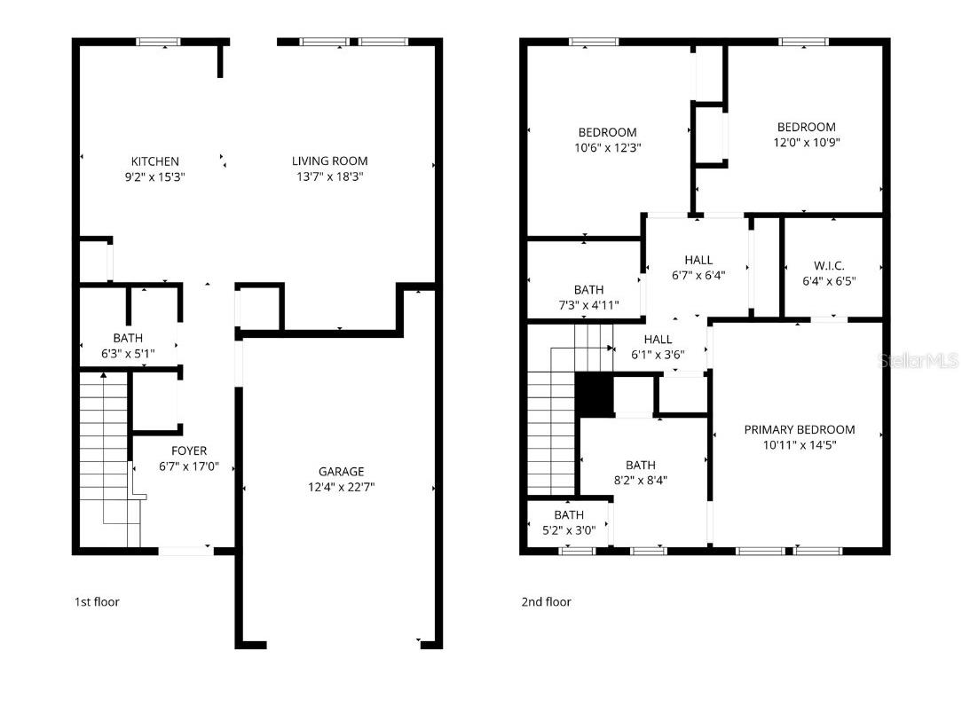
3 beds 2 baths 1,372 sq ft Single Family
Details for 9870 Tivoli Villa Drive
MLS# O6372025
Description for 9870 Tivoli Villa Drive, Orlando, FL, 32829
3/2, Community Pool, Community Playground, Community Clubhouse, Community Fitness Center, Family Room, Eat-In Kitchen, Kitchen with Appliances Included: Stove, Refrigerator, Dishwasher, Disposal, Microwave, Inside Laundry Room with Washer and Dryer, Tile and Wood Throughout, Pets OK, NO SMOKING. Year Built: 2005/1,372 Sq. Ft. Property Available- Immediately
Listing Information
Property Type: Rental, Single Family Residence
Status: Active
Bedrooms: 3
Bathrooms: 2
Lot Size: 0.06 Acres
Square Feet: 1,372 sq ft
Year Built: 2005
Stories: 1 Story
Date Available: 1/8/2026
Subdivision: Crowntree Lakes 02 & 03
County: Orange
Room Information
Bathrooms
Full Baths: 2
Additonal Room Information
Laundry: Inside, Washer Hookup, Laundry Room
Interior Features
Appliances: Disposal, Microwave, Range, Refrigerator
Flooring: Tile,Wood
Additional Interior Features: Eat-In Kitchen, Other
Utilities
Cooling: Central Air
Heating: Central
Exterior / Lot Features
Pool: Community
Community Features
Community Features: Pool, Playground, Clubhouse, Fitness
Security Deposit: 2095
Driving Directions
Take Interstate Highway 4 W/I-4 W toward Orlando, Follow Interstate Highway 4 W/I-4 W toward Tampa, Take the right exit onto E West Expy E/FL-408 E toward Titusville, Keep left at E West Expy E/FL-408 E toward Titusville, Take exit 18 on the right onto Florida State Road 417 S/FL-417 S toward Tampa, Keep right at Florida State Road 417 S/FL-417 S toward Orlando Int'l Airport, Take exit 30 on the right onto Curry Ford Rd/FL-552, Turn right onto Curry Ford Rd/FL-552, Turn left onto S. Econlockhatchee Trl, and Turn left onto Tivoli Villa Dr.
Financial Considerations
Owner Pays: Other
Tax/Property ID: 18-23-31-1776-00-870
A broker reciprocity listing courtesy: LEGENDS REALTY
Based on information provided by Stellar MLS as distributed by the MLS GRID. Information from the Internet Data Exchange is provided exclusively for consumers’ personal, non-commercial use, and such information may not be used for any purpose other than to identify prospective properties consumers may be interested in purchasing. This data is deemed reliable but is not guaranteed to be accurate by Edina Realty, Inc., or by the MLS. Edina Realty, Inc., is not a multiple listing service (MLS), nor does it offer MLS access.
Copyright 2026 Stellar MLS as distributed by the MLS GRID. All Rights Reserved.
Sales History & Tax Summary for 9870 Tivoli Villa Drive
Sales History
| Date | Price | Change |
|---|---|---|
| Currently not available. | ||
Tax Summary
| Tax Year | Estimated Market Value | Total Tax |
|---|---|---|
| Currently not available. | ||
Data powered by ATTOM Data Solutions. Copyright© 2026. Information deemed reliable but not guaranteed.
Schools
Schools nearby 9870 Tivoli Villa Drive
| Schools in attendance boundaries | Grades | Distance | Rating |
|---|---|---|---|
| Loading... | |||
| Schools nearby | Grades | Distance | Rating |
|---|---|---|---|
| Loading... | |||
Data powered by ATTOM Data Solutions. Copyright© 2026. Information deemed reliable but not guaranteed.
The schools shown represent both the assigned schools and schools by distance based on local school and district attendance boundaries. Attendance boundaries change based on various factors and proximity does not guarantee enrollment eligibility. Please consult your real estate agent and/or the school district to confirm the schools this property is zoned to attend. Information is deemed reliable but not guaranteed.
SchoolDigger ® Rating
The SchoolDigger rating system is a 1-5 scale with 5 as the highest rating. SchoolDigger ranks schools based on test scores supplied by each state's Department of Education. They calculate an average standard score by normalizing and averaging each school's test scores across all tests and grades.
Coming soon properties will soon be on the market, but are not yet available for showings.