$51,750/month
Debary, FL 32713
For Rent MLS# O6323769
Commercial
Details for
MLS# O6323769
Description for , Debary, FL, 32713
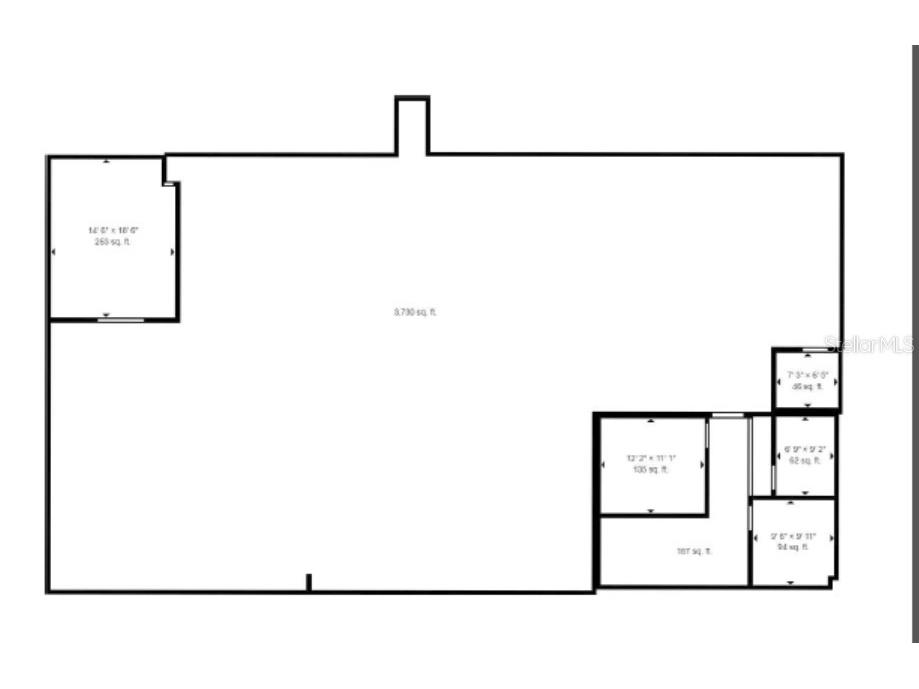
URGENTLY AVAILABLE FOR LEASE & IMMEDIATE OCCUPANCY - BE THE FIRST TO MOVE IN! BRAND NEW CONSTRUCTION AVAILABLE. CUSTOM BUILD OUT AVAILABLE. The newly built Springview Industrial Park is pleased to offer a clear-span, pillar-free, warehouse flex space customized to suit your needs. Stand-alone building configuration of 4,500 SF, building height at 24'. One (1) grade-level door and an abundance of natural light. Ample parking available. Springview Industrial Park is a 2020 built industrial commerce park on a cul-de-sac right off of Shell Rd. This 33,000 SF industrial park is located just off of Shell Rd, in the heart of Debary, less than 4 miles from local retail on Debary Ave & Deltona Blvd and less than two minutes from the Gemini Springs Park. Ideally situated with easy access to US 17/92, Dirksen Dr, & Debary Ave, less than 5 minutes from I-4, and in the fastest growing industrial market in Volusia County! This industrial/flex space will meet your criteria & beat your expectations! Schedule your private tour today!
Listing Information
Property Type: Commercial, Industrial
Status: Active
Lot Size: 5.03 Acres
Year Built: 2020
Stories: 1 Story
Construction: Block,Metal Frame
Subdivision: Springview Indust Park Unit 02
Foundation: Slab
County: Volusia
Utilities
Cooling: Partial
Exterior / Lot Features
Parking Description: Parking Space(s)
Lot Dimensions: 205x440
Driving Directions
To reach 276 Springview Commerce Drive in DeBary, FL, take Exit 104 off I-4 toward Debary Ave if coming from Orlando. Turn right onto Debary Ave and continue straight, then turn right onto Shell Rd. Next, turn left onto Springview Commerce Dr, and the property will be on your right. Alternatively, if coming from US-17/92 in DeBary, head north on US-17/92, turn right onto Shell Rd, and then turn left onto Springview Commerce Dr. The property will be on your right.
Financial Considerations
Tenant Pays: Electricity,Other,See Remarks
Owner Pays: None,Other
Tax/Property ID: 9004-16-00-0170-E
Tax Amount: 92757.65
Tax Year: 2024
A broker reciprocity listing courtesy: ALPHA EQUITY REALTY & MANAGEMENT INC
Based on information provided by Stellar MLS as distributed by the MLS GRID. Information from the Internet Data Exchange is provided exclusively for consumers’ personal, non-commercial use, and such information may not be used for any purpose other than to identify prospective properties consumers may be interested in purchasing. This data is deemed reliable but is not guaranteed to be accurate by Edina Realty, Inc., or by the MLS. Edina Realty, Inc., is not a multiple listing service (MLS), nor does it offer MLS access.
Copyright 2025 Stellar MLS as distributed by the MLS GRID. All Rights Reserved.
Sales History & Tax Summary for
Sales History
| Date | Price | Change |
|---|---|---|
| Currently not available. | ||
Tax Summary
| Tax Year | Estimated Market Value | Total Tax |
|---|---|---|
| Currently not available. | ||
Data powered by ATTOM Data Solutions. Copyright© 2025. Information deemed reliable but not guaranteed.
Schools
Schools nearby
| Schools in attendance boundaries | Grades | Distance | Rating |
|---|---|---|---|
| Loading... | |||
| Schools nearby | Grades | Distance | Rating |
|---|---|---|---|
| Loading... | |||
Data powered by ATTOM Data Solutions. Copyright© 2025. Information deemed reliable but not guaranteed.
The schools shown represent both the assigned schools and schools by distance based on local school and district attendance boundaries. Attendance boundaries change based on various factors and proximity does not guarantee enrollment eligibility. Please consult your real estate agent and/or the school district to confirm the schools this property is zoned to attend. Information is deemed reliable but not guaranteed.
SchoolDigger ® Rating
The SchoolDigger rating system is a 1-5 scale with 5 as the highest rating. SchoolDigger ranks schools based on test scores supplied by each state's Department of Education. They calculate an average standard score by normalizing and averaging each school's test scores across all tests and grades.
Coming soon properties will soon be on the market, but are not yet available for showings.