$44,775/month
Debary, FL 32713
For Rent MLS# O6328163
Commercial
Details for
MLS# O6328163
Description for , Debary, FL, 32713
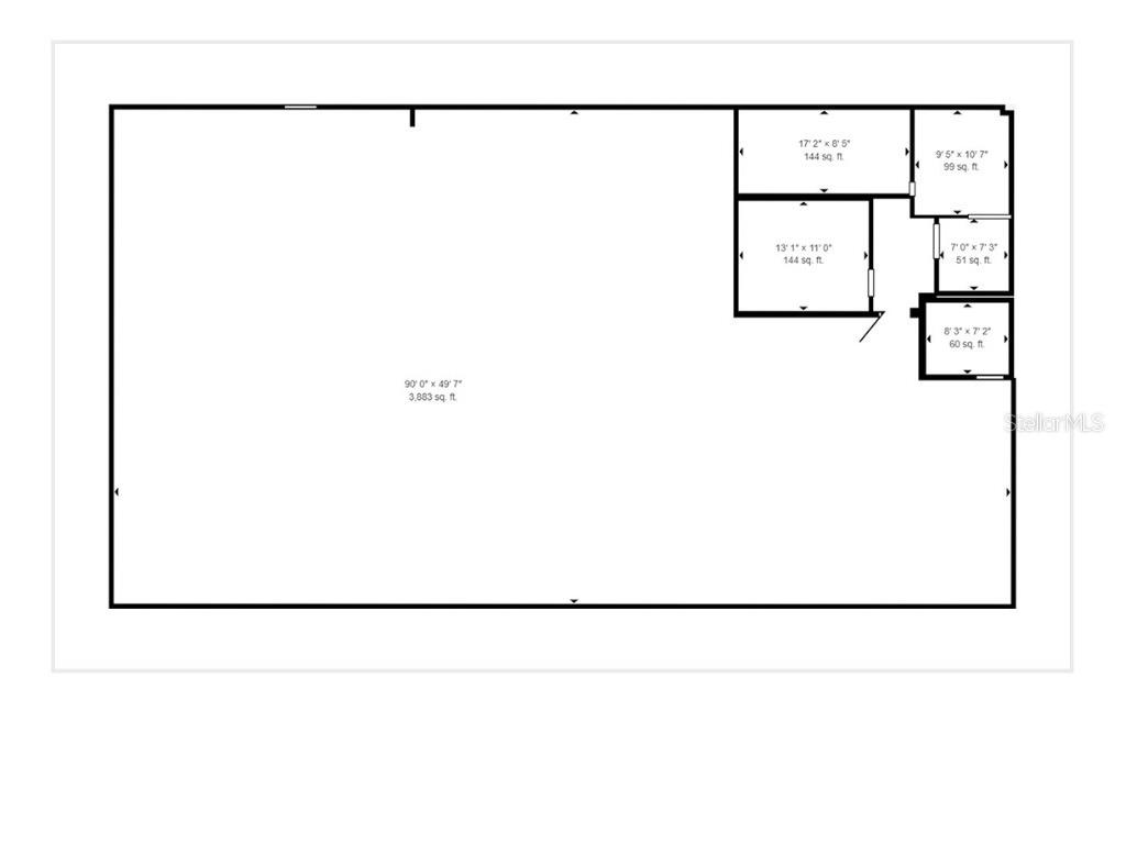
Elevate your business at 262 Springview Commerce Dr, DeBary, FL — a newly built industrial flex property in the heart of Springview Commerce Park. Designed for modern operations, this ±4,500 SF unit offers high ceilings, a clear-span layout, and a clean, professional finish throughout. The space features an oversized 12x14 roll-up door, dedicated loading area, and ample on-site parking to ensure seamless logistics and accessibility. Inside, you'll find a well-appointed office/showroom with private offices, a reception area, and two restrooms—all under tenant-controlled HVAC. Whether you’re in manufacturing, distribution, or warehousing, this prime location offers the ideal blend of functionality, visibility, and connectivity. Located just minutes from I-4, US-17/92, and SR-417, it positions your business for success in one of DeBary’s most active commercial corridors. Now available for lease — contact us today to schedule a private tour.
Listing Information
Property Type: Commercial, Industrial
Status: Active
Lot Size: 5.03 Acres
Year Built: 2007
Stories: 1 Story
Construction: Block,Metal Frame
Subdivision: Springview Indust Park Unit 02
Foundation: Slab
County: Volusia
Utilities
Cooling: Partial
Exterior / Lot Features
Lot Dimensions: 205x440
Driving Directions
To reach 262 Springview Commerce Dr, DeBary, FL, take I-4 and use Exit 108 toward DeBary/Deltona. Head west on DeBary Avenue (CR-4146) for approximately 1.5 miles. Then, turn left onto Springview Commerce Drive. The property will be on your left, located within Springview Commerce Park. If you're coming from US-17/92, turn onto DeBary Avenue heading east, then turn right onto Springview Commerce Drive after about a mile. From SR-417, connect to I-4 East and follow the same steps from Exit 108. The address can be entered directly into any GPS device as 262 Springview Commerce Dr, DeBary, FL 32713.
Financial Considerations
Tenant Pays: Other,See Remarks
Owner Pays: None,Other
Tax/Property ID: 90-04-16-00-01-0262
Tax Amount: 92757.65
Tax Year: 2024
A broker reciprocity listing courtesy: ALPHA EQUITY REALTY & MANAGEMENT INC
Based on information provided by Stellar MLS as distributed by the MLS GRID. Information from the Internet Data Exchange is provided exclusively for consumers’ personal, non-commercial use, and such information may not be used for any purpose other than to identify prospective properties consumers may be interested in purchasing. This data is deemed reliable but is not guaranteed to be accurate by Edina Realty, Inc., or by the MLS. Edina Realty, Inc., is not a multiple listing service (MLS), nor does it offer MLS access.
Copyright 2025 Stellar MLS as distributed by the MLS GRID. All Rights Reserved.
Sales History & Tax Summary for
Sales History
| Date | Price | Change |
|---|---|---|
| Currently not available. | ||
Tax Summary
| Tax Year | Estimated Market Value | Total Tax |
|---|---|---|
| Currently not available. | ||
Data powered by ATTOM Data Solutions. Copyright© 2025. Information deemed reliable but not guaranteed.
Schools
Schools nearby
| Schools in attendance boundaries | Grades | Distance | Rating |
|---|---|---|---|
| Loading... | |||
| Schools nearby | Grades | Distance | Rating |
|---|---|---|---|
| Loading... | |||
Data powered by ATTOM Data Solutions. Copyright© 2025. Information deemed reliable but not guaranteed.
The schools shown represent both the assigned schools and schools by distance based on local school and district attendance boundaries. Attendance boundaries change based on various factors and proximity does not guarantee enrollment eligibility. Please consult your real estate agent and/or the school district to confirm the schools this property is zoned to attend. Information is deemed reliable but not guaranteed.
SchoolDigger ® Rating
The SchoolDigger rating system is a 1-5 scale with 5 as the highest rating. SchoolDigger ranks schools based on test scores supplied by each state's Department of Education. They calculate an average standard score by normalizing and averaging each school's test scores across all tests and grades.
Coming soon properties will soon be on the market, but are not yet available for showings.