$181,440/month
Orlando, FL 32801
For Rent MLS# O6358910
6,480 sq ft Commercial
Details for
MLS# O6358910
Description for , Orlando, FL, 32801
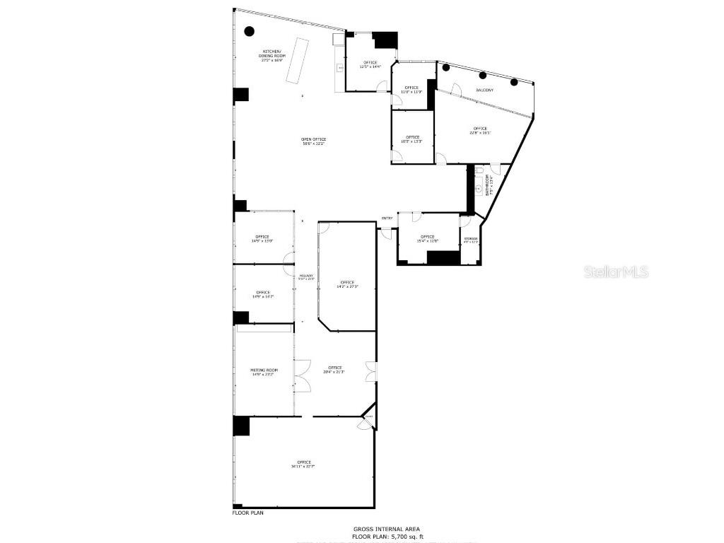
Discover an exceptional commercial office space at The Plaza, located at 189 S Orange Ave, Unit 1550-1570, in the heart of Downtown Orlando. This 6,480 SF unit offers unparalleled views, premium amenities, and design perfect for businesses seeking a high-profile presence. Positioned on the 15th floor, this office space provides a versatile open-plan layout featuring private meeting rooms, a reception area, and ample natural light through floor-to-ceiling windows. The space is designed to accommodate various business needs with multiple office configurations. The suite features 7+ offices and two oversized conference rooms. The office spaces include five distinct areas: Office 1 near the entrance, ideal for small teams or individual workstations; Office 2, slightly larger, suitable for an executive office or a small group of employees; Office 3, centrally located, perfect for a team environment or a large executive office; Office 4, which can be set up as conference rooms or collaborative workspaces; and Office 5 at the rear of the property, ideal for a large team area, training space, or a sizeable executive suite at approximately 805 SF. This executive suite features a grand walk in shower with floor to ceiling tile with an accent strip. In addition to the office spaces, there is a meeting room near several offices designed for meetings, conferences, or collaborative sessions with space for multiple attendees. The central open office area is suitable for an open-plan office setup, fostering collaboration and communication among employees. A kitchen/dining room near the open office area includes modern kitchen facilities and a dining area for employee breaks and meals. An accessible balcony offers a relaxation area for employees with fresh air and a change of environment. Additional features include a storage area, approximately 40 SF providing space for storing supplies and equipment and a main entryway connecting directly to the open office area and several office spaces, facilitating easy access and navigation throughout the property. The Plaza offers a modern lobby with 24/7 concierge service, state-of-the-art conference rooms, well-appointed break rooms, and kitchen facilities. Tenants benefit from an on-site fitness center, various retail shops, and dining options within the complex. The building is ADA compliant and features high-speed elevators for easy access. Security is a top priority, with secure access and professional security services. Ample parking is available in the attached garage, and the location offers convenient access to major highways and public transportation. This office space presents an exclusive opportunity to position your business in one of Orlando's most sought-after locations. Contact Alpha Equity Realty & Management, Inc. today to schedule a private viewing and discover how this prime office space can elevate your business presence in Downtown Orlando.
Listing Information
Property Type: Commercial, Office
Status: Active
Lot Size: 0.06 Acres
Square Feet: 6,480 sq ft
Year Built: 2007
Construction: Concrete
Subdivision: Plaza South Tower Coml Condo
Foundation: Block
County: Orange
Utilities
Cooling: Central Air
Driving Directions
Orange Ave south from Colonial drive, .5 mi to Ch. St, turn left, entry to garage on the left.
Financial Considerations
Tenant Pays: Other,See Remarks
Owner Pays: Other
Tax/Property ID: 26-22-29-7157-15-500
Tax Amount: 11080.39
Tax Year: 2024
A broker reciprocity listing courtesy: ALPHA EQUITY REALTY & MANAGEMENT INC
Based on information provided by Stellar MLS as distributed by the MLS GRID. Information from the Internet Data Exchange is provided exclusively for consumers’ personal, non-commercial use, and such information may not be used for any purpose other than to identify prospective properties consumers may be interested in purchasing. This data is deemed reliable but is not guaranteed to be accurate by Edina Realty, Inc., or by the MLS. Edina Realty, Inc., is not a multiple listing service (MLS), nor does it offer MLS access.
Copyright 2025 Stellar MLS as distributed by the MLS GRID. All Rights Reserved.
Sales History & Tax Summary for
Sales History
| Date | Price | Change |
|---|---|---|
| Currently not available. | ||
Tax Summary
| Tax Year | Estimated Market Value | Total Tax |
|---|---|---|
| Currently not available. | ||
Data powered by ATTOM Data Solutions. Copyright© 2025. Information deemed reliable but not guaranteed.
Schools
Schools nearby
| Schools in attendance boundaries | Grades | Distance | Rating |
|---|---|---|---|
| Loading... | |||
| Schools nearby | Grades | Distance | Rating |
|---|---|---|---|
| Loading... | |||
Data powered by ATTOM Data Solutions. Copyright© 2025. Information deemed reliable but not guaranteed.
The schools shown represent both the assigned schools and schools by distance based on local school and district attendance boundaries. Attendance boundaries change based on various factors and proximity does not guarantee enrollment eligibility. Please consult your real estate agent and/or the school district to confirm the schools this property is zoned to attend. Information is deemed reliable but not guaranteed.
SchoolDigger ® Rating
The SchoolDigger rating system is a 1-5 scale with 5 as the highest rating. SchoolDigger ranks schools based on test scores supplied by each state's Department of Education. They calculate an average standard score by normalizing and averaging each school's test scores across all tests and grades.
Coming soon properties will soon be on the market, but are not yet available for showings.