$88,770/month
TBD SE Us Highway 441 Belleview, FL 34420
For Rent MLS# OM695562
Commercial
Details for TBD SE Us Highway 441
MLS# OM695562
Description for TBD SE Us Highway 441, Belleview, FL, 34420
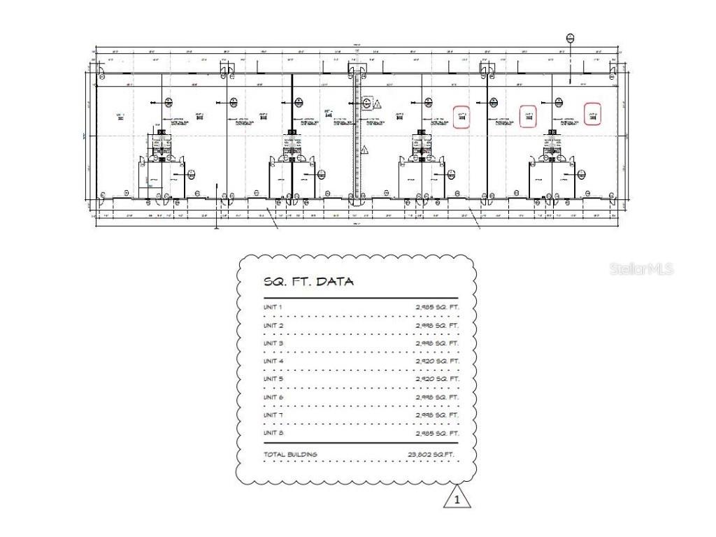
Pre-Construction. To be built. Now pre-leasing, this new construction project along the South US Highway 441 corridor is slated for completion in December 2025. The development features B-5 zoning and free-span warehouses with flexible unit configurations ranging from 2,920 SF to 11,901 SF. Options include up to eight units, each +/- 3,000 SF; up to four units, each 5,918 SF; up to two units, each approximately 11,901 SF; or a combination of varying sizes. Each unit will include 400 SF of office space, ADA-compliant restrooms, 14-foot ground-level roll-up doors, 200 Amp service panels, and mini-split HVAC units for the office spaces. Secure your space now in this highly anticipated development!
Listing Information
Property Type: Commercial, Warehouse
Status: Active
Lot Size: 1.06 Acres
Year Built: 1977
Stories: 1 Story
Construction: Other
Construction Display: New Construction
Subdivision: Lake Weir Gardens
Foundation: Slab
County: Marion
Utilities
Cooling: Partial, Ductless
Driving Directions
From the intersection of SE Maricamp Rd & FL-35 S/SE Baseline Rd head south on FL-35 S/SE Baseline Rd, turn left onto US-27 S/US-441 S, turn left on SE 119th Pl, turn right at the 1st cross street onto SE 70th Avenue Rd, turn right onto SE 72nd Terrace Rd, turn right onto US-27 N/US-441 N and your destination will be on the right.
Financial Considerations
Owner Pays: None
Tax/Property ID: 3924-021-007
Tax Amount: 3460.6
Tax Year: 2024
A broker reciprocity listing courtesy: WIECHENS REALTY INC
Based on information provided by Stellar MLS as distributed by the MLS GRID. Information from the Internet Data Exchange is provided exclusively for consumers’ personal, non-commercial use, and such information may not be used for any purpose other than to identify prospective properties consumers may be interested in purchasing. This data is deemed reliable but is not guaranteed to be accurate by Edina Realty, Inc., or by the MLS. Edina Realty, Inc., is not a multiple listing service (MLS), nor does it offer MLS access.
Copyright 2026 Stellar MLS as distributed by the MLS GRID. All Rights Reserved.
Sales History & Tax Summary for TBD SE Us Highway 441
Sales History
| Date | Price | |
|---|---|---|
| Currently not available. | ||
Tax Summary
| Tax Year | Estimated Market Value | Total Tax |
|---|---|---|
| Currently not available. | ||
Data powered by ATTOM Data Solutions. Copyright© 2026. Information deemed reliable but not guaranteed.
Schools
Schools nearby TBD SE Us Highway 441
| Schools in attendance boundaries | Grades | Distance | Rating |
|---|---|---|---|
| Loading... | |||
| Schools nearby | Grades | Distance | Rating |
|---|---|---|---|
| Loading... | |||
Data powered by ATTOM Data Solutions. Copyright© 2026. Information deemed reliable but not guaranteed.
The schools shown represent both the assigned schools and schools by distance based on local school and district attendance boundaries. Attendance boundaries change based on various factors and proximity does not guarantee enrollment eligibility. Please consult your real estate agent and/or the school district to confirm the schools this property is zoned to attend. Information is deemed reliable but not guaranteed.
SchoolDigger ® Rating
The SchoolDigger rating system is a 1-5 scale with 5 as the highest rating. SchoolDigger ranks schools based on test scores supplied by each state's Department of Education. They calculate an average standard score by normalizing and averaging each school's test scores across all tests and grades.
Coming soon properties will soon be on the market, but are not yet available for showings.